Maison neuve à
Saint-Hymer (14130) Référence : AV2451233_1

Prix du projet : Maison avec Terrain

prix 223 000 €

  • 6 pièces
  • 4 chambres
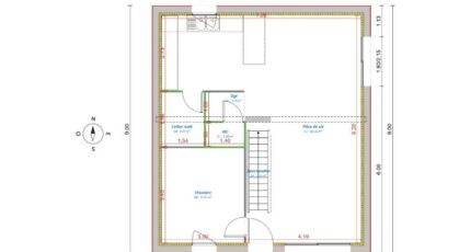
  • Surface maison 89 m2

Maison de 89m² habitable

Elle se compose d'une belle pièces de vie ouverte, avec un cellier et une chambre au rdc.
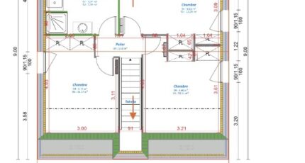
A l'étage 3 chambres et une salle de bain.

Prestations :

Carrelage 45*45
volets roulants encastrée à la maçonnerie + électrique Somfy
Parquet dans les chambres

Pour une étude de votre projet de construction merci de prendre rdv au 06.48.23.57.76 Angélique Vaudry

Mentions légales

Terrain proposé par un partenaire foncier selon disponibilités et autorisation de publicité au prix de 75 000 €. Hors droit d'enregistrement et frais de notaire. Terrain + Maison proposés au prix de 223 000 € (Hors branchements et raccordements, papiers peints, peintures, revêtement de sol dans les chambres. Tarif modifiable sans préavis). Etiquette énergie : A. Différents modèles disponibles pour ce terrain. Assurances et garanties du constructeur (RC professionnelle, décennale, dommage ouvrage, garantie de remboursement de l'acompte, livraison à prix et délai convenu) : https://www.maisons-france-confort.fr/mentions-legales/. HEXAOM Services est enregistré auprès de l'ORIAS en tant que Courtier en financement, Niveau 1, sous le numéro 14001345.

Contactez l'agence de Lisieux

02 31 62 91 30

    * Champs obligatoires

    Vos informations sont traitées par HEXAOM et transmises à un conseiller commercial qui vous contactera afin de répondre à votre demande. Les plans et images présentés sur notre site sont la propriété d’HEXAOM et ne peuvent pas être reproduits sans son accord. Pour retrouver notre politique de protection des données personnelles et exercer vos droits conformément à la « loi informatique et liberté » cliquez-ici.