Maison neuve à
Saint-Jean
(31240) Référence :
AL2460928_4
Prix du projet : Maison avec Terrain
prix 348 455 €
- 4 pièces
- 3 chambres
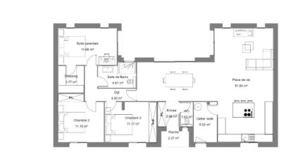
- Surface maison 110 m2
Bienvenue dans cette charmante résidence en U, une véritable oasis de confort et de sophistication. Cette maison exceptionnelle de 110 m² offre un cadre de vie raffiné et fonctionnel, alliant élégance moderne et design intemporel vers SAINT-JEAN.
Dès l'entrée, vous serez accueilli par un espace lumineux et aéré qui s'étend harmonieusement sur trois côtés de la maison, créant ainsi une atmosphère chaleureuse et conviviale. Les grandes baies vitrées et les portes-fenêtres laissent généreusement pénétrer la lumière naturelle, créant une sensation d'espace et mettant en valeur les finitions de qualité.
La cuisine, véritable joyau de cette demeure, allie esthétisme et fonctionnalité. Équipée de matériaux haut de gamme et d'appareils modernes, elle est le lieu idéal pour exprimer vos talents culinaires. L'îlot central crée un point focal élégant et favorise la convivialité, invitant à partager de délicieux repas en famille ou entre amis.
Les trois chambres à coucher, spacieuses et lumineuses, offrent des espaces privés où le confort et le bien-être sont prioritaires. Les matériaux de qualité et la palette de couleurs apaisantes créent une ambiance propice à la détente, tandis que les placards intégrés assurent un rangement optimal, combinant ainsi style et fonctionnalité.
Le jardin intérieur, véritable coeur de la maison en U, constitue un espace extérieur privilégié. Intimiste et bien aménagé, il vous offre un refuge tranquille pour profiter des journées ensoleillées ou des soirées étoilées, créant ainsi une connexion harmonieuse entre l'intérieur et l'extérieur.
Investissement terrain + maison : 348 455 € (hors frais annexes).
Contactez-nous pour une étude gratuite et découvrez comment passer du rêve à la réalité avec le leader de la construction en France :
Agence Maisons France Confort d'Aucamville.
Annonce proposée par un Agent Commercial Partenaire.
Mentions légales
Terrain proposé par un partenaire foncier selon disponibilités et autorisation de publicité au prix de 125 000 €. Hors droit d'enregistrement et frais de notaire. Terrain + Maison proposés au prix de 348 455 € (Hors branchements et raccordements, papiers peints, peintures, revêtement de sol dans les chambres. Tarif modifiable sans préavis). Etiquette énergie : A. Différents modèles disponibles pour ce terrain. Assurances et garanties du constructeur (RC professionnelle, décennale, dommage ouvrage, garantie de remboursement de l'acompte, livraison à prix et délai convenu) : https://www.maisons-france-confort.fr/mentions-legales/. HEXAOM Services est enregistré auprès de l'ORIAS en tant que Courtier en financement, Niveau 1, sous le numéro 14001345.Agence Maisons France Confort de Aucamville (31140)
- Téléphone :
- 05 34 43 84 38
- Adressse :
- 17 chemin Bellegarrigues
31140 Aucamville, France
