Maison neuve à
Saint-Jean-Brévelay
(56660) Référence :
DD2487241_2
Prix du projet : Maison avec Terrain
prix 236 260 €
- 4 pièces
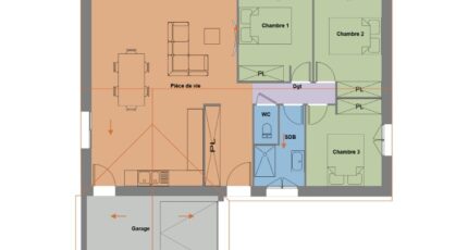
- 3 chambres
- Surface maison 73 m2
Maison de 4 pièces (73 m²) en vente à Saint-Jean-Brévelay
EMPLACEMENT PRIVILÉGIÉ - MAISON 4 PIÈCES NEUVE
En vente : localisée à 23 km de la côte atlantique et à 19 km de Vannes, nous sommes heureux de vous présenter cette maison de 4 pièces de plain-pied de 73 m² et de 347 m² de terrain bénéficiant d'un emplacement privilégié dans Saint-Jean-Brévelay (56660). Elle compte trois chambres, une cuisine et une salle de bains.
Cette maison est neuve.
Cette maison se situe dans un secteur attractif. On trouve le Lycée Professionnel Agricole de Saint-Jean-Jean-Jean à moins de 10 minutes à pied. La nationale N24 est accessible à 9 km. Il y a quatre commerces, une boucherie-charcuterie, un bureau de poste et une supérette à quelques minutes.
Elle est à vendre pour la somme de 236 260 €.
Contactez notre agence (Damien DURIF : 02-97-68-32-50) pour tout renseignement sur le bien ou sur les démarches à suivre. Maisons de l'Avenir Vannes vous accompagne dans tous vos projets immobiliers et à toutes les étapes de votre projet.
Mentions légales
Terrain proposé par un partenaire foncier selon disponibilités et autorisation de publicité au prix de 48 900 €. Hors droit d'enregistrement et frais de notaire. Terrain + Maison proposés au prix de 236 260 € (Hors branchements et raccordements, papiers peints, peintures, revêtement de sol dans les chambres. Tarif modifiable sans préavis). Etiquette énergie : A. Différents modèles disponibles pour ce terrain. Assurances et garanties du constructeur (RC professionnelle, décennale, dommage ouvrage, garantie de remboursement de l'acompte, livraison à prix et délai convenu) : https://www.maisonsdelavenir.com/mentions-legales/.Agence Maisons de l'Avenir de Vannes (56000)
- Téléphone :
- 02 97 68 32 50
- Adressse :
- 36, rue Oberlé
56000 Vannes, France