Maison neuve à
Saint-Jean-d'Angély
(17400) Référence :
PD2280717_2
Prix du projet : Maison avec Terrain
prix 144 595 €
- 3 pièces
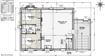
- 2 chambres
- Surface maison 70 m2
Saint-Jean-d'Angély : maison F3 (2 chambres + garage) à 5 min à pied du centre historique
Son intérieur inclut deux chambres, une cuisine, une salle de bains et un garage de 16m².
Son prix de vente est de 144 595 €.
Contactez notre agence (DECOU Pascal : O6-46-75-16-45) pour toute question sur la maison, sur les modalités de vente ou sur les démarches à suivre.
Bermax Construction Saintes vous accompagne à toutes les étapes de l'achat et dans tous vos projets immobiliers.
Mentions légales
Terrain proposé par un partenaire foncier selon disponibilités et autorisation de publicité au prix de 23 000 €. Hors droit d'enregistrement et frais de notaire. Maison proposée, avec un contrat de construction de maison individuelle, dans le cadre de la loi du 19/12/1990, au prix de 121 595 € (Hors branchements et raccordements, papiers peints, peintures, revêtement de sol dans les chambres, qui sont chiffrés dans les travaux qui restent à charge du client. Tarif modifiable sans préavis). Étiquette énergie : A. Différents modèles disponibles pour ce terrain. Assurances et garanties du constructeur comprises (RC professionnelle, décennale, dommage ouvrage).Agence Bermax de Saintes (17100)
- Téléphone :
- 05 46 91 55 26
- Adressse :
- 1 impasse de la recouvrance
17100 Saintes, France
