Maison neuve à
Saint-Jean-de-Fos
(34150) Référence :
LR2471880_2
Prix du projet : Maison avec Terrain
prix 303 200 €
- 4 pièces
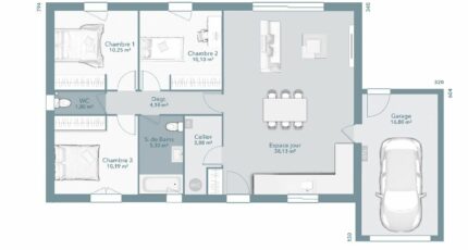
- 3 chambres
- Surface maison 83 m2
VENTE : maison F4 (83 m²) à Saint-Jean-de-Fos
EMPLACEMENT PRIVILÉGIÉ - MAISON 4 PIÈCES NEUVE
À vendre : Saint-Jean-de-Fos, un village situé à la sortie des Gorges de Hérault, situé à 6 minutes d'Aniane, 10 minutes de Gignac, 20 minutes de Clermont-L'hérault et 30 minutes de Montpellier., nous vous présentons cette maison de 4 pièces de plain-pied de 83 m² bénéficiant d'un emplacement privilégié dans Saint-Jean-de-Fos (34150). Conçue de plain-pied, elle propose trois chambres, une cuisine et une salle de bains.
Le terrain du bien s'étend sur 457 m².
Cette maison est neuve.
La maison se situe dans un secteur convoité. L'École Primaire Privée Saint Genies et l'École Primaire André Miquel se trouvent à moins de 10 minutes à pied. Les autoroutes A750 et A75 sont accessibles à moins de 10 km. Il y a un tennis et un bureau de poste à quelques minutes.
Elle est proposée à l'achat pour 303 200 €.
N'hésitez pas à prendre contact avec Lionel ROMERA (tél : 06-30-39-77-79) pour obtenir de plus amples informations sur le bien, sur les démarches à suivre et sur les modalités de vente.
Annonce proposée par un Agent Commercial Partenaire.
Mentions légales
Terrain proposé par un partenaire foncier selon disponibilités et autorisation de publicité au prix de 149 000 €. Hors droit d'enregistrement et frais de notaire. Terrain + Maison proposés au prix de 303 200 € (Hors branchements et raccordements, papiers peints, peintures, revêtement de sol dans les chambres. Tarif modifiable sans préavis). Etiquette énergie : A. Différents modèles disponibles pour ce terrain. Assurances et garanties du constructeur (RC professionnelle, décennale, dommage ouvrage, garantie de remboursement de l'acompte, livraison à prix et délai convenu) : https://www.maisons-france-confort.fr/mentions-legales/. HEXAOM Services est enregistré auprès de l'ORIAS en tant que Courtier en financement, Niveau 1, sous le numéro 14001345.Agence Maisons France Confort de Montpellier (34000)
- Téléphone :
- 04 67 64 85 11
- Adressse :
- 48, impasse Louis Ferdinand Herold
34000 Montpellier, France
