Maison neuve à
Saint-Jean-de-Monts
(85160) Référence :
NR2247999_1
Prix du projet : Maison avec Terrain
prix 179 900 €
- 2 pièces
- 1 chambre
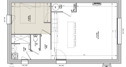
- Surface maison 50 m2
************* REALISEZ VOTRE PROJET A SEULEMENT 10 MINUTES DE LA MER ****************
Maison de 2 pièces (50 m²) à vendre à Saint-Jean-de-Monts
IDÉALEMENT SITUÉE - MAISON 2 PIÈCES NEUVE
À vendre : située à 793 m de la côte atlantique, nous sommes ravis de vous présenter, idéalement située dans Saint-Jean-de-Monts (85160), cette maison de 2 pièces de plain-pied de 50 m².
Son intérieur inclut une chambre, une cuisine et une salle de bains. La maison est neuve.
Le terrain du bien s'étend sur 470 m².
La maison se trouve dans un quartier attractif. Il y a l'École Primaire Privée Mixte Saint Jean, le Collège Privé Saint Jean les Lauriers et le Collège Pays de Monts à moins de 10 minutes à pied. On trouve des commerces, des boulangeries, deux supermarchés, une épicerie et quatre poissonneries à quelques minutes à peine. Enfin, le marché Place Yole anime les environs.
Son prix de vente est de 179 900 €.
N'hésitez pas à prendre contact avec notre agence (RISSELIN Nicolas : 06-80-33-03-82) pour toute question sur la maison, sur les modalités de vente ou sur les démarches à suivre. LMP Constructeur Saint-Gilles-Croix-de-Vie est là pour vous accompagner à toutes les étapes de l'achat.
************* REALISEZ VOTRE PROJET A SEULEMENT 10 MINUTES DE LA MER ****************
Mentions légales
Terrain proposé par un partenaire foncier selon disponibilités et autorisation de publicité au prix de 75 600 €. Hors droit d'enregistrement et frais de notaire. Maison proposée, avec un contrat de construction de maison individuelle, dans le cadre de la loi du 19/12/1990, au prix de 104 300 € (Hors branchements et raccordements, papiers peints, peintures, revêtement de sol dans les chambres, qui sont chiffrés dans les travaux qui restent à charge du client. Tarif modifiable sans préavis). Étiquette énergie : A. Différents modèles disponibles pour ce terrain. Assurances et garanties du constructeur comprises (RC professionnelle, décennale, dommage ouvrage).Agence Logis du Marais Poitevin de Saint-Gilles-Croix-de-Vie (85800)
- Téléphone :
- 02 51 55 34 29
- Adressse :
- 5 rue Gautté
85800 Saint-Gilles-Croix-de-Vie, France
