Maison neuve à
Saint-Julien
(22940) Référence :
DD2480859_2
Prix du projet : Maison avec Terrain
prix 380 200 €
- 4 pièces
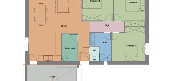
- 3 chambres
- Surface maison 114 m2
✨ COUP DE CUR : Maison d'Architecte de 114 m² sur un Terrain XXL à Saint-Julien
Le luxe de l'espace, le confort du neuf, et la douceur de vivre aux portes de Saint-Brieuc.
Située dans le quartier le plus prisé de Saint-Julien (22940), cette maison neuve de 4 pièces allie élégance contemporaine et prestations de haute qualité. Nichée sur une parcelle rare de 1 382 m², elle est l'écrin parfait pour ceux qui exigent calme et volume.
🏠 Un intérieur moderne et lumineux
Conçue sur deux niveaux pour séparer idéalement espaces de vie et de nuit, elle offre :
Un vaste espace de vie : Une cuisine ouverte sur un séjour baigné de lumière naturelle.
3 Grandes Chambres : Dont une suite possible, pour un confort intime et chaleureux.
Double Sanitaires : 2 salles de bains équipées, alliant design et fonctionnalité.
🌳 Un extérieur hors catégorie
Profiter d'un jardin de plus de 1 300 m² en zone résidentielle est un privilège rare. Imaginez : une piscine, un verger, une terrasse monumentale ou simplement un terrain de jeu infini pour vos enfants, le tout à 15 minutes des plages de la Manche.
📍 Un emplacement stratégique (Tout à pied !)
Éducation : Les écoles (St Joseph et Les Plantes) à moins de 10 min à pied.
Services : Boucherie-charcuterie artisanale, bibliothèque et tennis à deux pas.
Mobilité : Gare TGV de Saint-Brieuc et accès N12 à moins de 10 min en voiture.
💰 Prix : 380 200 €
Investissez dans la qualité, bénéficiez des dernières normes énergétiques et profitez de garanties constructeur totales.
Ne vous contentez pas de l'ordinaire.
Offrez-vous une adresse d'exception et une maison qui vous ressemble.
📞 Contactez dès maintenant Maisons de l'Avenir Saint-Brieuc pour une étude personnalisée de votre projet. Notre équipe est à votre disposition pour transformer ce rêve en réalité.
Mentions légales
Terrain proposé par un partenaire foncier selon disponibilités et autorisation de publicité au prix de 76 000 €. Hors droit d'enregistrement et frais de notaire. Terrain + Maison proposés au prix de 380 200 € (Hors branchements et raccordements, papiers peints, peintures, revêtement de sol dans les chambres. Tarif modifiable sans préavis). Etiquette énergie : A. Différents modèles disponibles pour ce terrain. Assurances et garanties du constructeur (RC professionnelle, décennale, dommage ouvrage, garantie de remboursement de l'acompte, livraison à prix et délai convenu) : https://www.maisonsdelavenir.com/mentions-legales/.Agence Maisons de l'Avenir de Saint-Brieuc (22000)
- Téléphone :
- 02 96 78 52 58
- Adressse :
- 1 bis boulevard Carnot
22000 Saint-Brieuc, France