Maison neuve à
Saint-Julien-de-Concelles
(44450) Référence :
TD2465221_4
Prix du projet : Maison avec Terrain
prix 351 000 €
- 4 pièces
- 3 chambres
- Surface maison 90 m2
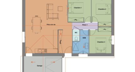
VENTE : maison F4 (90 m²) à Saint-Julien-de-Concelles
PROCHE DE NANTES - MAISON 4 PIÈCES NEUVE
À vendre à 42 km de l'océan Atlantique et à quelques kilomètres de Nantes, notre agence Maisons de l'Avenir Rezé est heureuse de vous proposer cette maison de 4 pièces de plain-pied de 90 m² à Saint-Julien-de-Concelles (44450).
Conçue de plain-pied, elle offre trois chambres, une cuisine et une salle de bains.
Elle est à vendre pour la somme de 351 000 €.
N'hésitez pas à prendre contact avec Thibault DUPONT pour tout renseignement sur la maison. Maisons de l'Avenir Rezé est là pour vous accompagner à toutes les étapes de votre projet.
Mentions légales
Terrain proposé par un partenaire foncier selon disponibilités et autorisation de publicité au prix de 128 000 €. Hors droit d'enregistrement et frais de notaire. Terrain + Maison proposés au prix de 351 000 € (Hors branchements et raccordements, papiers peints, peintures, revêtement de sol dans les chambres. Tarif modifiable sans préavis). Etiquette énergie : A. Différents modèles disponibles pour ce terrain. Assurances et garanties du constructeur (RC professionnelle, décennale, dommage ouvrage, garantie de remboursement de l'acompte, livraison à prix et délai convenu) : https://www.maisonsdelavenir.com/mentions-legales/.Agence Maisons de l'Avenir de Rezé (44400)
- Téléphone :
- 02 40 26 28 28
- Adressse :
- 56, rue de la butte de Praud
44400 Rezé, France
