Maison neuve à
Saint-Just-Luzac (17320) Référence : PEH2439408_2

Prix du projet : Maison avec Terrain

prix 318 900 €

  • 5 pièces
  • 3 chambres
  • Surface maison 100 m2

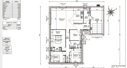
Maison à construire RE 2020 à Saint-Just-Luzac - Confort moderne et cadre de vie privilégié

À proximité de Marennes, aux portes de l'Île d'Oléron et à 20 minutes de Rochefort, découvrez cette maison individuelle à construire, conforme à la réglementation RE 2020.

D'une surface habitable de 109 m² de plain-pied, elle offre une conception moderne et optimisée :

✔ Belle pièce de vie lumineuse avec triple exposition
✔ 3 chambres, dont une avec salle d'eau privative et dressing
✔ Une seconde salle d'eau indépendante
✔ Un bureau
✔ Cellier fonctionnel
✔ WC séparé
✔ Garage attenant de 20 m²

Pour un confort optimal en toute saison, la maison est équipée d'une pompe à chaleur avec plancher chauffant hydraulique, alliant performance énergétique et bien-être au quotidien.

Vous souhaitez personnaliser ce projet ou imaginer une maison sur-mesure adaptée à vos envies ?

📞 Contactez Pierre-Emmanuel HÜE (Bermax Construction Vaux-sur-Mer)

Mentions légales

Terrain proposé par un partenaire foncier selon disponibilités et autorisation de publicité au prix de 70 005 €. Hors droit d'enregistrement et frais de notaire. Terrain + Maison proposés au prix de 318 900 € (Hors branchements et raccordements, papiers peints, peintures, revêtement de sol dans les chambres. Tarif modifiable sans préavis). Etiquette énergie : A. Différents modèles disponibles pour ce terrain. Assurances et garanties du constructeur (RC professionnelle, décennale, dommage ouvrage, garantie de remboursement de l'acompte, livraison à prix et délai convenu) : https://www.bermax-constructions.fr/mentions-legales/.

Contactez l'agence de Vaux-sur-Mer

05 46 38 01 49

    * Champs obligatoires

    Vos informations sont traitées par HEXAOM et transmises à un conseiller commercial qui vous contactera afin de répondre à votre demande. Les plans et images présentés sur notre site sont la propriété d’HEXAOM et ne peuvent pas être reproduits sans son accord. Pour retrouver notre politique de protection des données personnelles et exercer vos droits conformément à la « loi informatique et liberté » cliquez-ici.