Maison neuve à
Saint-Laurent-de-Cognac (16100) Référence : TD2401760_3

Prix du projet : Maison avec Terrain

prix 447 600 €

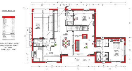
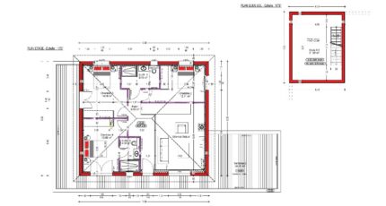
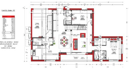
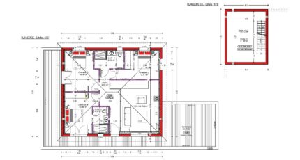
  • 6 pièces
  • 4 chambres
  • Surface maison 165 m2

MAISON NEUVE - PROCHE DE COGNAC ET SAINTES
Laissez vous charmer par cette maison de 165 m² à vendre à Saint-Laurent-de-Cognac (16100). Elle compte quatre chambres, une cuisine et trois salles de bains spacieuse, une grande pièce de vie lumineuse, un cellier et garage. MODE MODULABLE. MODE DE CHAUFFAGE ECONOMIQUE. RE2020. MATERIAUX ET PRESTATIONS DE QUALITES.
Le terrain de la propriété s'étend sur 1 350 m².
Il y a l'École Élémentaire Saint-Laurent-Laurent-Laurent à moins de 10 minutes à pied. Côté transports, on trouve la gare de Cognac à moins de 10 minutes en voiture. Il y a un accès à la nationale N141 à 3 km. Accès rapide Cognac et Saintes.
Contactez Tony DAIGRE (tél : O6-15-20-16-38) pour plus de renseignements sur cette maison, sur les démarches à suivre ou sur les modalités de vente. Donnez vie à vos projets immobiliers avec Alpha Constructions Cognac.

Mentions légales

Terrain proposé par un partenaire foncier selon disponibilité dans le cadre d’un projet de construction avec Alpha Constructions. Les descriptions, photographies, surfaces et prix illustrant l’annonce sont fournies à titre indicatif et ne sont pas contractuels. Non soumis au DPE. Différents modèles disponibles.

Contactez l'agence de Cognac

05 17 22 82 53

    * Champs obligatoires

    Vos informations sont traitées par HEXAOM et transmises à un conseiller commercial qui vous contactera afin de répondre à votre demande. Les plans et images présentés sur notre site sont la propriété d’HEXAOM et ne peuvent pas être reproduits sans son accord. Pour retrouver notre politique de protection des données personnelles et exercer vos droits conformément à la « loi informatique et liberté » cliquez-ici.