Maison neuve à
Saint-Loubès
(33450) Référence :
MP1896223_2
Prix du projet : Maison avec Terrain
prix 226 054 €
- 4 pièces
- 2 chambres
- Surface maison 65 m2
Vente d'un terrain de 450 m² à St Loubès (33450)
Secteur paisible, ce terrain vous charmera par son environnement et ses perspectives de construction.
À proximité de toutes les commodités.
EMPLACEMENT RECHERCHÉ
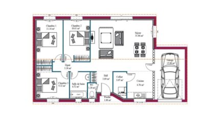
Découvrez le modèle Optima avec ses 4 pièces pour une surface de 65 m² habitables. La maison de 4 pièces est composée de 2 chambres, d'une cuisine avec cellier et d'une salle de bains. Un garage complète ce bien.
Projet modulable ou sur mesure.
Le projet de construction présenté est proposé pour un montant de : 226 054 € (hors frais de notaire, VRD, embellissements extérieurs).
Terrain rectangulaire, à viabiliser. Raccordements à proximité. Un étude complète sera faite pour votre projet.
Découvrez notre accompagnement sur mesure et notre savoir-faire.
Pour toute demande de renseignements complémentaires et étude de votre projet de construction, contactez Megan PERRIER au O647735737
MCA Créon est là pour vous accompagner dans tous vos projets immobiliers.
Agence Maisons de la Côte Atlantique de Créon (33670)
- Téléphone :
- 05 56 23 67 73
- Adressse :
- 30 bis, Boulevard Victor Hugo
33670 Créon, France
