Maison neuve à
Saint-Louet-sur-Seulles (14310) Référence : JS2391537_3

Prix du projet : Maison avec Terrain

prix 224 000 €

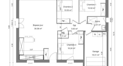
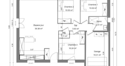
  • 5 pièces
  • 3 chambres
  • Surface maison 85 m2

Villers-Bocage : maison T5 (85 m²) à vendre
Idéalement située -  À découvrir à Villers-Bocage (14310) : maison neuve 5 pièces à vendre, 85 m² de surface et 618 m² de terrain. Conçue de plain-pied, elle compte trois chambres, une cuisine et une salle de bains.
À dix minutes : école divers Collège Simone Veil, crèche, bibliothèque, bassin de natation, tennis, commerces, boulangeries, supermarchés, bureau de poste et boucherie-charcuterie. Autoroute A84 accessible à 2 km.
Le prix de vente de cette maison de 5 pièces est de 224 000 €.
Prenez contact avec notre agence (HUE Emilie : 06-29-81-46-66) pour obtenir de plus amples renseignements sur la maison, sur les démarches à suivre ou sur les modalités de vente. Maisons France Confort Bayeux vous accompagne à toutes les étapes de l'achat et dans tous vos projets immobiliers.

Annonce proposée par un Agent Commercial Partenaire.

Mentions légales

Terrain proposé par un partenaire foncier selon disponibilités et autorisation de publicité au prix de 79 000 €. Hors droit d'enregistrement et frais de notaire. Terrain + Maison proposés au prix de 224 000 € (Hors branchements et raccordements, papiers peints, peintures, revêtement de sol dans les chambres. Tarif modifiable sans préavis). Etiquette énergie : A. Différents modèles disponibles pour ce terrain. Assurances et garanties du constructeur (RC professionnelle, décennale, dommage ouvrage, garantie de remboursement de l'acompte, livraison à prix et délai convenu) : https://www.maisons-france-confort.fr/mentions-legales/. HEXAOM Services est enregistré auprès de l'ORIAS en tant que Courtier en financement, Niveau 1, sous le numéro 14001345.

Contactez l'agence de Bayeux

02 31 51 20 91

    * Champs obligatoires

    Vos informations sont traitées par HEXAOM et transmises à un conseiller commercial qui vous contactera afin de répondre à votre demande. Les plans et images présentés sur notre site sont la propriété d’HEXAOM et ne peuvent pas être reproduits sans son accord. Pour retrouver notre politique de protection des données personnelles et exercer vos droits conformément à la « loi informatique et liberté » cliquez-ici.