Maison neuve à 
  Saint-Loup-Hors
 (14400)  Référence :
 JS2322535_2 
Prix du projet : Maison avec Terrain
prix 256 000 €
- 5 pièces
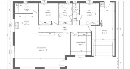
- 3 chambres
- Surface maison 110 m2
VENTE d'une maison de 5 pièces (110 m²) à Bayeux
MAISON 5 PIÈCES NEUVE - PROCHE DE CAEN
En vente : située à 9 km de la Manche et à 26 km de Caen, nous vous proposons à Bayeux (14400), cette maison de 5 pièces de plain-pied de 110 m² et de 301 m² de terrain.
Elle compte trois chambres, une cuisine et une salle de bains. Cette maison est neuve.
Des écoles de tous types (de la maternelle au lycée) sont implantées à moins de 10 minutes à pied, tout comme une crèche. Côté transports en commun, on trouve la gare Bayeux juste à côté. La nationale N13 est accessible à 3 km. Il y a une bibliothèque, des commerces, des boulangeries, un supermarché, une supérette et trois épiceries à proximité de la maison. Enfin, 2 marchés animent les environs.
Son prix de vente est de 256 000 €.
Contactez notre agence (Emilie HUE : 06-29-81-46-66) pour tout renseignement sur cette maison ou sur les démarches à suivre. Maisons France Confort Bayeux vous accompagne à toutes les étapes de l'achat et dans tous vos projets immobiliers.
Annonce proposée par un Agent Commercial Partenaire.
Mentions légales
Terrain proposé par un partenaire foncier selon disponibilités et autorisation de publicité au prix de 56 000 €. Hors droit d'enregistrement et frais de notaire. Maison proposée, avec un contrat de construction de maison individuelle, dans le cadre de la loi du 19/12/1990, au prix de 200 000 € (Hors branchements et raccordements, papiers peints, peintures, revêtement de sol dans les chambres, qui sont chiffrés dans les travaux qui restent à charge du client. Tarif modifiable sans préavis). Étiquette énergie : A. Différents modèles disponibles pour ce terrain. Assurances et garanties du constructeur comprises (RC professionnelle, décennale, dommage ouvrage).Agence Maisons France Confort de Bayeux (14400)
- Téléphone :
- 02 31 51 20 91
- Adressse :
-  2, rue Saint Loup
 14400 Bayeux, France
 
  
  
  
  
 