Maison neuve à
Saint-Lys (31470) Référence : CC2463447_2

Prix du projet : Maison avec Terrain

prix 314 789 €

  • 5 pièces
  • 4 chambres
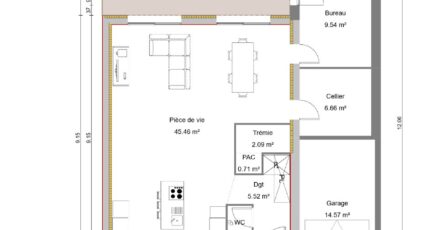
  • Surface maison 102 m2

Saint-Lys : maison de 4 pièces (95 m²) en vente
PROCHE DE TOULOUSE - MAISON 4 PIÈCES NEUVE
À quelques kilomètres de Toulouse, à vendre à Saint-Lys (31470), nous vous présentons cette maison de 4 pièces de plain-pied de 95 m². Son intérieur est composé de trois chambres, d'une cuisine et d'une salle de bains.
Le terrain de la propriété est de 695 m².
La maison est neuve.

Son prix de vente est de 325 148 €.
N'hésitez pas à prendre contact avec nous pour plus de renseignements sur cette maison. Maisons France Confort Tournefeuille 05.61.16.47.77 est là pour vous accompagner dans toutes vos démarches.
Hors frais annexes.

Annonce proposée par un Agent Commercial Partenaire.

Mentions légales

Terrain proposé par un partenaire foncier selon disponibilités et autorisation de publicité au prix de 129 000 €. Hors droit d'enregistrement et frais de notaire. Terrain + Maison proposés au prix de 314 789 € (Hors branchements et raccordements, papiers peints, peintures, revêtement de sol dans les chambres. Tarif modifiable sans préavis). Etiquette énergie : A. Différents modèles disponibles pour ce terrain. Assurances et garanties du constructeur (RC professionnelle, décennale, dommage ouvrage, garantie de remboursement de l'acompte, livraison à prix et délai convenu) : https://www.maisons-france-confort.fr/mentions-legales/. HEXAOM Services est enregistré auprès de l'ORIAS en tant que Courtier en financement, Niveau 1, sous le numéro 14001345.

Contactez l'agence de Tournefeuille

05 61 16 47 77

    * Champs obligatoires

    Vos informations sont traitées par HEXAOM et transmises à un conseiller commercial qui vous contactera afin de répondre à votre demande. Les plans et images présentés sur notre site sont la propriété d’HEXAOM et ne peuvent pas être reproduits sans son accord. Pour retrouver notre politique de protection des données personnelles et exercer vos droits conformément à la « loi informatique et liberté » cliquez-ici.