Maison neuve à
Saint-Magne-de-Castillon
(33350) Référence :
DL2471823_3
Prix du projet : Maison avec Terrain
prix 205 678 €
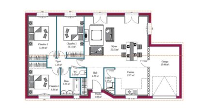
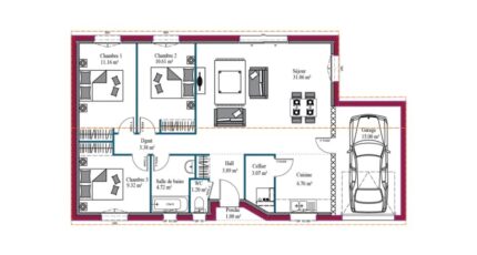
- 4 pièces
- 3 chambres
- Surface maison 90 m2
David LOPES des maisons MCA vous propose d'adapter le modèle Optima, sur ce joli terrain d'environ 1367m², sur la commune de Castillon la Bataille.
Cette maison possède un grand salon-séjour tourné vers le jardin, une cuisine ouverte avec son cellier attenant, ce qui offre un espace jour de plus de 41m2. Le coté nuit est composé de 3 chambres avec placards, une salle de bains et wc séparés. Un garage communiquant de 15 m2 vient compléter ce bel ensemble.
Ce modèle saura vous plaire grâce à son agencement idéalement pensé pour votre confort de vie, et l'optimisation des espaces.
Le prix affiché comprend le terrain, les frais de notaire, les frais de raccordement, et cette maison livrée prête à décorer.
N'attendez plus, contactez vite votre conseiller David LOPES au O6-5O-88-58-8O à l'agence MCA de Libourne, afin qu'il vous guide dans les démarches et vous accompagne dans ce projet de construction personnalisé.
Mentions légales
Idée de réalisation en modèle prêt à décorer sur l'un de nos terrains partenaires, sous réserve de disponibilités. Voir détails en agence.Agence Maisons de la Côte Atlantique de Libourne (33500)
- Téléphone :
- 05 57 48 72 88
- Adressse :
- 99, Avenue du Général de Gaulle
33500 Libourne, France
