Maison neuve à 
  Saint-Maixant
 (33490)  Référence :
 ML2320939_4 
Prix du projet : Maison avec Terrain
prix 214 900 €
- 5 pièces
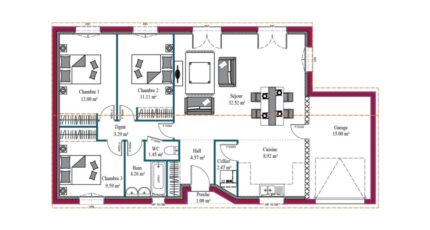
- 3 chambres
- Surface maison 90 m2
Saint-Maixant : maison F5 (90 m²) en vente
IDÉALEMENT SITUÉE - MAISON 5 PIÈCES NEUVE
En vente : nous vous proposons, idéalement située dans Saint-Maixant (33490), cette maison de 5 pièces de plain-pied de 90 m².
Conçue de plain-pied, elle se divise en trois chambres, une cuisine et une salle de bains. La maison est neuve.
Le terrain de la propriété s'étend sur 1 084 m².
La maison se trouve dans un quartier convoité. L'École Primaire François Mauriac est implantée à moins de 10 minutes à pied. Niveau transports en commun, on trouve sept gares à moins de 10 minutes en voiture. L'autoroute A62 est accessible à 4 km. Il y a deux tennis, une boulangerie, un commerce, un supermarché et une épicerie à proximité.
Son prix de vente est de 214 900 €.
Contactez Maryne LAGORCE (tél : O6-81-35-86-92) pour toute information sur la maison. Maisons de la Côte Atlantique Langon est là pour vous accompagner dans toutes vos démarches.
Agence Maisons de la Côte Atlantique de Langon (33210)
- Téléphone :
- 05 56 76 82 20
- Adressse :
-  2, Rue du Onze Novembre
 33210 Langon, France
 
  
  
  
  
  
  
  
  
  
  
 