Maison neuve à
Saint-Manvieu-Norrey (14740) Référence : JS2366327_10

Prix du projet : Maison avec Terrain

prix 194 000 €

  • 5 pièces
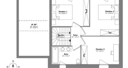
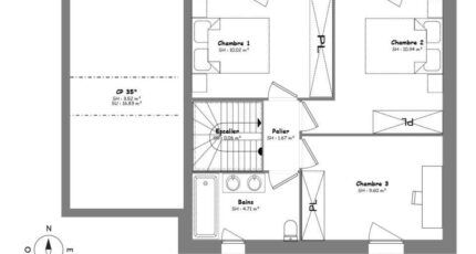
  • 3 chambres
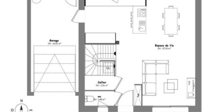
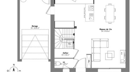
  • Surface maison 85 m2

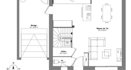
VENTE : maison T5 (85 m²) à Saint-Manvieu-Norrey
Idéalement située -  À vendre à Saint-Manvieu-Norrey (14740) : maison neuve 5 pièces de 85 m² et de 212 m² de terrain. Son intérieur compte trois chambres, une cuisine et une salle de bains.
À dix minutes : gares (Bretteville-Norrey, Saint-Germain-en-Laye Bel-Air-Fourqueux T13 et Audrieu), établissements scolaires, boulangerie, commerce et supermarché. Accès autoroute A84 et nationales N13 et N814 à 6 km. Caen à 9 km.
Le prix de vente de cette maison de 5 pièces est de 194 000 €.
N'hésitez pas à prendre contact avec notre agence (HUE Emilie : 06-29-81-46-66) pour obtenir de plus amples informations sur la maison. Maisons France Confort Bayeux est là pour vous accompagner à toutes les étapes de l'achat.

Annonce proposée par un Agent Commercial Partenaire.

Mentions légales

Terrain proposé par un partenaire foncier selon disponibilités et autorisation de publicité au prix de 49 000 €. Hors droit d'enregistrement et frais de notaire. Terrain + Maison proposés au prix de 194 000 € (Hors branchements et raccordements, papiers peints, peintures, revêtement de sol dans les chambres. Tarif modifiable sans préavis). Etiquette énergie : A. Différents modèles disponibles pour ce terrain. Assurances et garanties du constructeur (RC professionnelle, décennale, dommage ouvrage, garantie de remboursement de l'acompte, livraison à prix et délai convenu) : https://www.maisons-france-confort.fr/mentions-legales/. HEXAOM Services est enregistré auprès de l'ORIAS en tant que Courtier en financement, Niveau 1, sous le numéro 14001345.

Contactez l'agence de Bayeux

02 31 51 20 91

    * Champs obligatoires

    Vos informations sont traitées par HEXAOM et transmises à un conseiller commercial qui vous contactera afin de répondre à votre demande. Les plans et images présentés sur notre site sont la propriété d’HEXAOM et ne peuvent pas être reproduits sans son accord. Pour retrouver notre politique de protection des données personnelles et exercer vos droits conformément à la « loi informatique et liberté » cliquez-ici.