Maison neuve à
Saint-Mard
(77230) Référence :
CY2431678_1
Prix du projet : Maison avec Terrain
prix 360 000 €
- 5 pièces
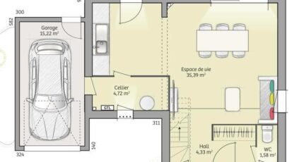
- 3 chambres
- Surface maison 90 m2
Maison T5 (90 m²) à vendre à Saint-Mard
PROCHE DE SAINT-DENIS - MAISON 5 PIÈCES NEUVE
En vente : à quelques minutes de la gare de Dammartin-Juilly-Saint-Mard (Paris à 30 min par le Transilien K), à Saint-Mard (77230), découvrez cette maison de 5 pièces de 90 m². Son intérieur se divise en trois chambres, une cuisine et une salle de bains.
Le terrain de cette maison est de 480 m².
Il s'agit d'une maison de 2 niveaux. Elle est neuve.
Il y a l'École Élémentaire Jacques Prévert, l'École Maternelle Emile Cacheux et le Collège Georges Brassens à moins de 10 minutes à pied et une crèche. Côté transports en commun, on trouve la gare Dammartin-Juilly-Saint-Mard dans un rayon de 1 km. Il y a une bibliothèque, trois tennis, deux boulangeries, un supermarché, trois commerces, un bureau de poste et deux boucheries-charcuteries à quelques minutes du logement.
Son prix de vente est de 360 000 €.
Prenez contact avec Cedric YAHIAOUI (tél : 06-66-57-00-63) pour toute information sur la maison, sur les modalités de vente ou sur les démarches à suivre. Maisons France Confort Magny-le-Hongre est là pour vous accompagner à toutes les étapes de l'achat.
Annonce proposée par un Agent Commercial Partenaire.
Mentions légales
Terrain proposé par un partenaire foncier selon disponibilités et autorisation de publicité au prix de 200 000 €. Hors droit d'enregistrement et frais de notaire. Terrain + Maison proposés au prix de 360 000 € (Hors branchements et raccordements, papiers peints, peintures, revêtement de sol dans les chambres. Tarif modifiable sans préavis). Etiquette énergie : A. Différents modèles disponibles pour ce terrain. Assurances et garanties du constructeur (RC professionnelle, décennale, dommage ouvrage, garantie de remboursement de l'acompte, livraison à prix et délai convenu) : https://www.maisons-france-confort.fr/mentions-legales/. HEXAOM Services est enregistré auprès de l'ORIAS en tant que Courtier en financement, Niveau 1, sous le numéro 14001345.Agence Maisons France Confort de Magny-le-Hongre (77700)
- Téléphone :
- 01 84 80 92 96
- Adressse :
- 11 rue de Courtalin
77700 Magny-le-Hongre, France
