Maison neuve à
Saint-Martin-le-Châtel (01310) Référence : SG2607-0_2

Prix du projet : Maison avec Terrain

prix 249 500 €

  • 4 pièces
  • 3 chambres
  • Surface maison 90 m2

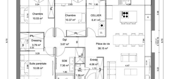
Maison de 4 pièces (90 m²) à vendre à Saint-Martin-le-Châtel
MAISON 4 PIÈCES NEUVE - PROCHE DE BOURG-EN-BRESSE
En vente : située à deux pas de Bourg-en-Bresse, notre agence Maisons France Confort Bourg-en-Bresse est heureuse de vous proposer cette maison de 4 pièces de plain-pied de 90 m² à Saint-Martin-le-Châtel (01310). Son intérieur inclut trois chambres, une cuisine et une salle de bains.
Le terrain de la maison s'étend sur 1 113 m².
La maison est neuve.
Une école primaire est implantée dans le quartier. Niveau transports en commun, il y a deux gares (Polliat et Mézériat) à moins de 10 minutes en voiture. Il y a un accès à l'autoroute A40 à 4 km.
Elle est à vendre pour la somme de 249 500 €.
Prenez contact avec notre agence (Sébastien GABRILLARGUES : 06-81-77-73-67) pour toute information sur cette maison, sur les démarches à suivre ou sur les modalités de vente. Maisons France Confort Bourg-en-Bresse vous accompagne dans tous vos projets immobiliers et dans toutes vos démarches.

Annonce proposée par un Agent Commercial Partenaire.

Mentions légales

Terrain proposé par un partenaire foncier selon disponibilités et autorisation de publicité au prix de 85 000 €. Hors droit d'enregistrement et frais de notaire. Terrain + Maison proposés au prix de 249 500 € (Hors branchements et raccordements, papiers peints, peintures, revêtement de sol dans les chambres. Tarif modifiable sans préavis). Etiquette énergie : A. Différents modèles disponibles pour ce terrain. Assurances et garanties du constructeur (RC professionnelle, décennale, dommage ouvrage, garantie de remboursement de l'acompte, livraison à prix et délai convenu) : https://www.maisons-france-confort.fr/mentions-legales/. HEXAOM Services est enregistré auprès de l'ORIAS en tant que Courtier en financement, Niveau 1, sous le numéro 14001345.

Contactez l'agence de Bourg-en-Bresse

04 74 14 04 47

    * Champs obligatoires

    Vos informations sont traitées par HEXAOM et transmises à un conseiller commercial qui vous contactera afin de répondre à votre demande. Les plans et images présentés sur notre site sont la propriété d’HEXAOM et ne peuvent pas être reproduits sans son accord. Pour retrouver notre politique de protection des données personnelles et exercer vos droits conformément à la « loi informatique et liberté » cliquez-ici.