Maison neuve à
Saint-Mesmes (77410) Référence : CY2410794_1

Prix du projet : Maison avec Terrain

prix 299 000 €

  • 5 pièces
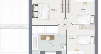
  • 3 chambres
  • Surface maison 80 m2

VENTE : maison T5 (80 m²) à Saint-Mesmes
IDÉALEMENT SITUÉE - MAISON 5 PIÈCES NEUVE
À vendre : au pied du Transilien K (gare de Compans, 25 min de Paris), idéalement située dans Saint-Mesmes (77410), Maisons France Confort Mareuil-lès-Meaux vous présente cette maison de 5 pièces de 80 m² et de 325 m² de terrain.
Cette maison compte 2 niveaux. Elle offre trois chambres, une cuisine et une salle de bains. Cette maison est neuve.
Cette maison se trouve dans un quartier convoité. L'École Primaire Léonard de Vinci est implantée à moins de 10 minutes à pied. Niveau transports, il y a la ligne de RER B (Mitry-Claye) ainsi que sept gares à moins de 10 minutes en voiture. On trouve deux tennis dans les environs.
Son prix de vente est de 299 000 €.
Contactez notre agence (YAHIAOUI Cedric : 06-66-57-00-63) pour toute question sur la maison ou sur les démarches à suivre. Maisons France Confort Mareuil-lès-Meaux vous accompagne dans tous vos projets immobiliers et à toutes les étapes de votre projet.

Annonce proposée par un Agent Commercial Partenaire.

Mentions légales

Terrain proposé par un partenaire foncier selon disponibilités et autorisation de publicité au prix de 155 000 €. Hors droit d'enregistrement et frais de notaire. Terrain + Maison proposés au prix de 299 000 € (Hors branchements et raccordements, papiers peints, peintures, revêtement de sol dans les chambres. Tarif modifiable sans préavis). Etiquette énergie : A. Différents modèles disponibles pour ce terrain. Assurances et garanties du constructeur (RC professionnelle, décennale, dommage ouvrage, garantie de remboursement de l'acompte, livraison à prix et délai convenu) : https://www.maisons-france-confort.fr/mentions-legales/. HEXAOM Services est enregistré auprès de l'ORIAS en tant que Courtier en financement, Niveau 1, sous le numéro 14001345.

Contactez l'agence de Mareuil-lès-Meaux

01 60 09 28 30

    * Champs obligatoires

    Vos informations sont traitées par HEXAOM et transmises à un conseiller commercial qui vous contactera afin de répondre à votre demande. Les plans et images présentés sur notre site sont la propriété d’HEXAOM et ne peuvent pas être reproduits sans son accord. Pour retrouver notre politique de protection des données personnelles et exercer vos droits conformément à la « loi informatique et liberté » cliquez-ici.