Maison neuve à
Saint-Mesmes
(77410) Référence :
TM2428444_15
Prix du projet : Maison avec Terrain
prix 410 000 €
- 4 pièces
- 3 chambres
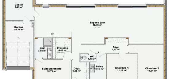
- Surface maison 85 m2
Saint-Mesmes : maison de 4 pièces (85 m²) en vente
MAISON 4 PIÈCES NEUVE - PROCHE DE PARIS
À vendre : proche de la gare de Compans (Paris à 25 min par le Transilien K), votre agence Maisons France Confort Magny-le-Hongre est heureuse de vous proposer cette maison de 4 pièces de plain-pied de 85 m² à Saint-Mesmes (77410).
Conçue de plain-pied, elle est composée de trois chambres, d'une cuisine et d'une salle de bains. Cette maison est neuve.
Le terrain du bien est de 350 m².
L'École Primaire Léonard de Vinci est implantée à moins de 10 minutes à pied. Niveau transports en commun, il y a la ligne de RER B (Mitry-Claye) ainsi que sept gares à moins de 10 minutes en voiture. On trouve deux tennis à proximité du logement.
Elle est proposée à l'achat pour 410 000 €.
Prenez contact avec notre agence (MELES Teddy : 06-17-56-83-36) pour toute question sur la maison, sur les modalités de vente ou sur les démarches à suivre. Maisons France Confort Magny-le-Hongre vous accompagne dans tous vos projets immobiliers et à toutes les étapes de votre projet.
Annonce proposée par un Agent Commercial Partenaire.
Mentions légales
Terrain proposé par un partenaire foncier selon disponibilités et autorisation de publicité au prix de 180 000 €. Hors droit d'enregistrement et frais de notaire. Terrain + Maison proposés au prix de 410 000 € (Hors branchements et raccordements, papiers peints, peintures, revêtement de sol dans les chambres. Tarif modifiable sans préavis). Etiquette énergie : A. Différents modèles disponibles pour ce terrain. Assurances et garanties du constructeur (RC professionnelle, décennale, dommage ouvrage, garantie de remboursement de l'acompte, livraison à prix et délai convenu) : https://www.maisons-france-confort.fr/mentions-legales/. HEXAOM Services est enregistré auprès de l'ORIAS en tant que Courtier en financement, Niveau 1, sous le numéro 14001345.Agence Maisons France Confort de Magny-le-Hongre (77700)
- Téléphone :
- 01 84 80 92 96
- Adressse :
- 11 rue de Courtalin
77700 Magny-le-Hongre, France
