Maison neuve à
Saint-Mesmes
(77410) Référence :
CY2433519_1
Prix du projet : Maison avec Terrain
prix 319 000 €
- 5 pièces
- 3 chambres
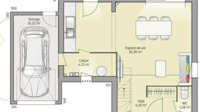
- Surface maison 90 m2
Saint-Mesmes : maison de 5 pièces (90 m²) en vente
MAISON 5 PIÈCES NEUVE - PROCHE DE PARIS
À vendre : à proximité de la gare de Compans (Paris à 25 min avec le Transilien K), nous sommes heureux de vous proposer à Saint-Mesmes (77410), cette maison de 5 pièces de 90 m².
Cette maison possède 2 niveaux. Son intérieur compte trois chambres, une cuisine et une salle de bains. La maison est neuve.
Le terrain du bien s'étend sur 752 m².
L'École Primaire Léonard de Vinci est implantée à moins de 10 minutes à pied. Niveau transports, on trouve la ligne de RER B (Mitry-Claye) ainsi que sept gares à moins de 10 minutes en voiture. Il y a deux tennis dans les environs.
Elle est à vendre pour la somme de 319 000 €.
Prenez contact avec Cedric YAHIAOUI (tél : 06-66-57-00-63) pour plus de renseignements sur cette maison. Maisons France Confort Magny-le-Hongre est là pour vous accompagner dans tous vos projets immobiliers.
Annonce proposée par un Agent Commercial Partenaire.
Mentions légales
Terrain proposé par un partenaire foncier selon disponibilités et autorisation de publicité au prix de 159 000 €. Hors droit d'enregistrement et frais de notaire. Terrain + Maison proposés au prix de 319 000 € (Hors branchements et raccordements, papiers peints, peintures, revêtement de sol dans les chambres. Tarif modifiable sans préavis). Etiquette énergie : A. Différents modèles disponibles pour ce terrain. Assurances et garanties du constructeur (RC professionnelle, décennale, dommage ouvrage, garantie de remboursement de l'acompte, livraison à prix et délai convenu) : https://www.maisons-france-confort.fr/mentions-legales/. HEXAOM Services est enregistré auprès de l'ORIAS en tant que Courtier en financement, Niveau 1, sous le numéro 14001345.Agence Maisons France Confort de Magny-le-Hongre (77700)
- Téléphone :
- 01 84 80 92 96
- Adressse :
- 11 rue de Courtalin
77700 Magny-le-Hongre, France
