Maison neuve à
Saint-Mesmes
(77410) Référence :
CY2433552_1
Prix du projet : Maison avec Terrain
prix 330 000 €
- 5 pièces
- 3 chambres
- Surface maison 90 m2
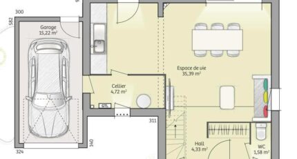
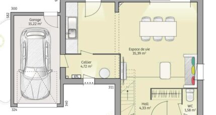
VENTE d'une maison F5 (90 m²) à Saint-Mesmes
PROCHE DE PARIS - MAISON 5 PIÈCES NEUVE
À proximité du Transilien K (gare de Compans, 25 min de Paris), votre agence Maisons France Confort Magny-le-Hongre est ravie de vous proposer cette maison de 5 pièces de 90 m² en vente à Saint-Mesmes (77410). Son intérieur se divise en trois chambres, une cuisine et une salle de bains.
Le terrain de la propriété est de 810 m².
Cette maison possède 2 niveaux. Elle est neuve.
L'École Primaire Léonard de Vinci se trouve à moins de 10 minutes à pied. Côté transports en commun, il y a la ligne de RER B (Mitry-Claye) ainsi que sept gares à moins de 10 minutes en voiture. On trouve deux tennis dans les environs.
Elle est proposée à l'achat pour 330 000 €.
N'hésitez pas à prendre contact avec Cedric YAHIAOUI (tél : 06-66-57-00-63) pour tout renseignement sur cette maison, sur les démarches à suivre ou sur les modalités de vente. Maisons France Confort Magny-le-Hongre vous accompagne à toutes les étapes de l'achat et dans tous vos projets immobiliers.
Annonce proposée par un Agent Commercial Partenaire.
Mentions légales
Terrain proposé par un partenaire foncier selon disponibilités et autorisation de publicité au prix de 170 000 €. Hors droit d'enregistrement et frais de notaire. Terrain + Maison proposés au prix de 330 000 € (Hors branchements et raccordements, papiers peints, peintures, revêtement de sol dans les chambres. Tarif modifiable sans préavis). Etiquette énergie : A. Différents modèles disponibles pour ce terrain. Assurances et garanties du constructeur (RC professionnelle, décennale, dommage ouvrage, garantie de remboursement de l'acompte, livraison à prix et délai convenu) : https://www.maisons-france-confort.fr/mentions-legales/. HEXAOM Services est enregistré auprès de l'ORIAS en tant que Courtier en financement, Niveau 1, sous le numéro 14001345.Agence Maisons France Confort de Magny-le-Hongre (77700)
- Téléphone :
- 01 84 80 92 96
- Adressse :
- 11 rue de Courtalin
77700 Magny-le-Hongre, France
