Maison neuve à
Saint-Pabu
(29830) Référence :
ET2479977_2
Prix du projet : Maison avec Terrain
prix 395 000 €
- 4 pièces
- 3 chambres
- Surface maison 120 m2
À vendre - Terrain rare de 770 m² à Saint Pabu (29) avec projet de maison sur mesure
St-Pabu proche de la mer et de Brest
Opportunité rare sur la commune de Saint Pabu !
Découvrez ce terrain de 770 m², idéalement situé à proximité immédiate du bourg, avec l'ensemble des commodités accessibles rapidement : commerces, écoles, services ...
Ce terrain est parfaitement adapté à un projet de construction, dans un environnement recherché, alliant confort de vie et praticité au quotidien.
💰 Prix du terrain : 96 000 €
👉 Vous souhaitez en savoir plus ou concevoir un projet entièrement personnalisé ?
Contactez dès maintenant Erwan TILLY - Maisons de l'Avenir, pour l'étude de votre projet et la conception de vos plans sur mesure.
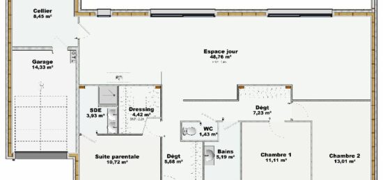
Nous vous proposons un projet de maison bois aux lignes architecturales contemporaines, entièrement conçu sur mesure, d'une surface d'environ 120 m², comprenant :
4 chambres,
un vaste espace de vie de plus de 45 m², lumineux et ouvert,
2 salles de bains,
de nombreux espaces de rangement,
un grand garage.
Cette proposition a été pensée dans le cadre de nos maisons Bâti Activ, afin de favoriser l'apport naturel d'ensoleillement, d'optimiser le confort de vie et de réduire l'impact budgétaire et énergétique à long terme.
Mentions légales
Terrain proposé par un partenaire foncier selon disponibilités et autorisation de publicité au prix de 96 000 €. Hors droit d'enregistrement et frais de notaire. Terrain + Maison proposés au prix de 395 000 € (Hors branchements et raccordements, papiers peints, peintures, revêtement de sol dans les chambres. Tarif modifiable sans préavis). Etiquette énergie : A. Différents modèles disponibles pour ce terrain. Assurances et garanties du constructeur (RC professionnelle, décennale, dommage ouvrage, garantie de remboursement de l'acompte, livraison à prix et délai convenu) : https://www.maisonsdelavenir.com/mentions-legales/.Agence Maisons de l'Avenir de Guipavas (29490)
- Téléphone :
- 02 98 03 90 90
- Adressse :
- 10 Rue de Poul Ar Feunteun
29490 Guipavas, France
