Maison neuve à
Saint-Paër
(76480) Référence :
AL2461895_7
Prix du projet : Maison avec Terrain
prix 235 400 €
- 5 pièces
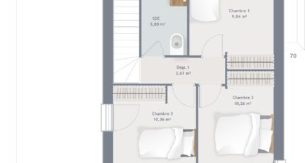
- 3 chambres
- Surface maison 90 m2
VENTE : maison 5 pièces (90 m²) à Saint-Paër
PROCHE DE ROUEN - MAISON 5 PIÈCES NEUVE
En vente : venez visiter cette maison de 5 pièces de 90 m² et de 800 m² de terrain à Saint-Paër (76480). Elle est composée de trois chambres, d'une cuisine et d'une salle de bains.
Cette maison possède 2 niveaux. Elle est neuve.
L'École Maternelle Jacques-Yves Cousteau et l'École Élémentaire Raymond Basile se trouvent à moins de 10 minutes à pied. Niveau transports, il y a deux gares (Barentin et Pavilly) à moins de 10 minutes en voiture. Il y a un accès à l'autoroute A150 à 6 km. On trouve une bibliothèque à proximité.
Le prix de vente de cette maison est de 220 000 €.
Contactez Maisons France Confort Boos 02 35 80 66 62 / 06 15 24 16 98 pour toute information sur cette maison. Donnez vie à vos projets immobiliers avec Maisons France Confort Boos.
Annonce proposée par un Agent Commercial Partenaire.
Mentions légales
Terrain proposé par un partenaire foncier selon disponibilités et autorisation de publicité au prix de 52 500 €. Hors droit d'enregistrement et frais de notaire. Terrain + Maison proposés au prix de 235 400 € (Hors branchements et raccordements, papiers peints, peintures, revêtement de sol dans les chambres. Tarif modifiable sans préavis). Etiquette énergie : A. Différents modèles disponibles pour ce terrain. Assurances et garanties du constructeur (RC professionnelle, décennale, dommage ouvrage, garantie de remboursement de l'acompte, livraison à prix et délai convenu) : https://www.maisons-france-confort.fr/mentions-legales/. HEXAOM Services est enregistré auprès de l'ORIAS en tant que Courtier en financement, Niveau 1, sous le numéro 14001345.Agence Maisons France Confort de Boos (76520)
- Téléphone :
- 02 35 80 66 62
- Adressse :
- 68 rue de la Forge Féret
76520 Boos, France
