Maison neuve à
Saint-Palais-sur-Mer
(17420) Référence :
PEH2266168_1
Prix du projet : Maison avec Terrain
prix 346 800 €
- 4 pièces
- 3 chambres
- Surface maison 80 m2
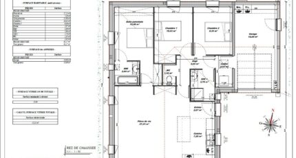
St-Palais-sur-Mer, à 1,9 km du centre-ville et des plages, nous proposons à construire cette maison RE 2020, de 83 m² de plain-pied avec garage.
Elle se compose d'une pièce de vie traversante, 3 chambres dont 1 avec salle d'eau privative, cellier, garage de 18 m².
Cette maison vous intéresse, contactez Pierre-Emmanuel HÜE (Bermax Construction Vaux-sur-Mer) au 06.25.78.28.20
Mentions légales
Terrain proposé par un partenaire foncier selon disponibilités et autorisation de publicité au prix de 143 600 €. Hors droit d'enregistrement et frais de notaire. Maison proposée, avec un contrat de construction de maison individuelle, dans le cadre de la loi du 19/12/1990, au prix de 203 200 € (Hors branchements et raccordements, papiers peints, peintures, revêtement de sol dans les chambres, qui sont chiffrés dans les travaux qui restent à charge du client. Tarif modifiable sans préavis). Étiquette énergie : A. Différents modèles disponibles pour ce terrain. Assurances et garanties du constructeur comprises (RC professionnelle, décennale, dommage ouvrage).Agence Bermax de Vaux-sur-Mer (17640)
- Téléphone :
- 05 46 38 01 49
- Adressse :
- 19 Avenue Malakoff
17640 Vaux-sur-Mer, France
