Maison neuve à
Saint-Palais-sur-Mer (17420) Référence : VC2461094_2

Prix du projet : Maison avec Terrain

prix 371 270 €

  • 4 pièces
  • 3 chambres
  • Surface maison 85 m2

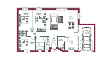
Véronique CANTEAU des maisons MCA de Royan, vous propose d'adapter le modèle Optima, sur ce terrain d'environ 350 m2, idéalement situé sur la commune de Saint Palais sur Mer, à 10 km de Royan, dans un cadre de vie privilégié.

Cette maison possède un grand salon-séjour tourné vers le jardin, une cuisine ouverte avec son cellier attenant, ce qui offre un espace jour de près de 38m2, le coté nuit est composé de 3 chambres avec placards, une salle de bains et wc séparés. Un garage communiquant de 15 m2 vient compléter ce bel ensemble.

Ce modèle saura vous plaire grâce à son agencement idéalement pensé pour votre confort de vie, et l'optimisation des espaces.

Le prix affiché comprend le terrain, les frais de notaire, et cette maison livrée prête à décorer.

Contactez vite votre conseillère Véronique CANTEAU au O7-86-18-39-78 à l'agence MCA de Royan, afin qu'elle vous guide dans les démarches et vous accompagne dans ce projet de construction personnalisé, aux normes RE2020.

Mentions légales

Idée de réalisation en modèle prêt à décorer sur l'un de nos terrains partenaires, sous réserve de disponibilités. Voir détails en agence.

Contactez l'agence de Royan

05 46 02 65 77

    * Champs obligatoires

    Vos informations sont traitées par HEXAOM et transmises à un conseiller commercial qui vous contactera afin de répondre à votre demande. Les plans et images présentés sur notre site sont la propriété d’HEXAOM et ne peuvent pas être reproduits sans son accord. Pour retrouver notre politique de protection des données personnelles et exercer vos droits conformément à la « loi informatique et liberté » cliquez-ici.