Maison neuve à
Saint-Paterne-Racan
(37370) Référence :
MT2497238_1
Prix du projet : Maison avec Terrain
prix 220 000 €
- 5 pièces
- 4 chambres
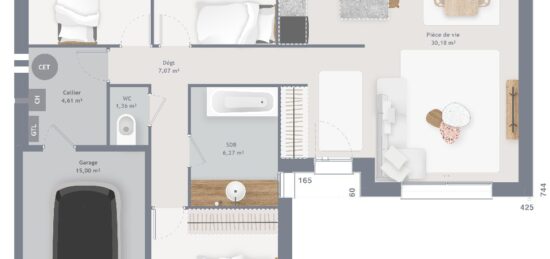
- Surface maison 110 m2
MAISON NEUVE À SAINT-PATERNE-RACAN 110 M², 5 PIÈCES
PRÉSENTATION DU BIEN
Située à Saint-Paterne-Racan, cette maison neuve à construire offre une surface habitable de 110 m² sur un terrain de 580 m².
Elle comprend quatre chambres, une cuisine ainsi qu'une salle de bains. Conçue pour vous permettre de réaliser votre maison, elle s'adapte à vos besoins.
La maison s'étend sur deux niveaux, offrant ainsi une répartition agréable des espaces.
Le terrain de 580 m² constitue un espace extérieur conséquent à exploiter selon vos envies.
ENVIRONNEMENT
Saint-Paterne-Racan est une commune résidentielle proche de Tours, à 27 kilomètres. La gare de Saint-Paterne-Racan se situe à environ 5 minutes en voiture. L'autoroute A28 est accessible à 10 km. Vous pouvez profiter des activités sportives comme un bassin de natation et des terrains de tennis situés à moins de 10 minutes à pied. Plusieurs commerces de proximité se trouvent également autour du bien. Parmi les établissements scolaires, une école maternelle et une école élémentaire sont accessibles à pied. Des restaurants sont également présents dans les environs.
NOUS CONTACTER
Cette maison est proposée à la vente au prix de 220 000 euros, honoraires et charges comprises.
Pour toute information ou pour organiser une visite, n'hésitez pas à contacter Maxime TERNIER de l'agence immobilière Maisons France Confort Saint-Avertin, membre du réseau Maisons France Confort, au °6 63 77 59 71. Nous sommes à votre disposition pour vous accompagner dans votre projet et vous aider à construire votre maison.
Mentions légales
Terrain proposé par un partenaire foncier selon disponibilités et autorisation de publicité au prix de 37 000 €. Hors droit d'enregistrement et frais de notaire. Terrain + Maison proposés au prix de 220 000 € (Hors branchements et raccordements, papiers peints, peintures, revêtement de sol dans les chambres. Tarif modifiable sans préavis). Etiquette énergie : A. Différents modèles disponibles pour ce terrain. Assurances et garanties du constructeur (RC professionnelle, décennale, dommage ouvrage, garantie de remboursement de l'acompte, livraison à prix et délai convenu) : https://www.maisons-france-confort.fr/mentions-legales/. HEXAOM Services est enregistré auprès de l'ORIAS en tant que Courtier en financement, Niveau 1, sous le numéro 14001345.Agence Maisons France Confort de Saint-Avertin (37550)
- Téléphone :
- 06 27 92 26 92
- Adressse :
- 35 rue du général Mocquery
37550 Saint-Avertin, France
