Maison neuve à
Saint-Paul-lès-Dax
(40990) Référence :
CP2479979_2
Prix du projet : Maison avec Terrain
prix 285 000 €
- 4 pièces
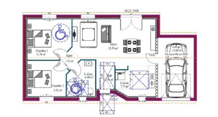
- 3 chambres
- Surface maison 90 m2
Cécile PÉNICAUT des Maisons MCA vous propose d'adapter le modèle Optima Investisseurs, sur ce terrain d'environ 500m², idéalement situé dans un petit lotissement, sur la commune de Saint Paul Dax.
Cette maison possède un grand salon-séjour tourné vers le jardin, une cuisine ouverte avec son cellier attenant, ce qui offre un espace jour de plus de 41m2. Le coté nuit est composé de 3 chambres avec placards, une salle de bains et wc séparés. Un garage communiquant de 15 m2 vient compléter ce bel ensemble.
Vous serez séduits pas ses volumes optimisés, et son adaptation PMR pour un projet locatif.
Le prix affiché comprend le terrain, les frais de notaire, les frais annexes (raccordements, bornage), et cette maison livrée prête à décorer.
Pour vous accompagner dans votre projet de construction personnalisé, contactez vite Cécile PÉNICAUT à l'agence MCA Saint Paul Lès Dax, afin qu'elle vous accompagne et vous guide dans les démarches 🗝️🌟🏡
Mentions légales
Idée de réalisation en modèle prêt à décorer sur l'un de nos terrains partenaires, sous réserve de disponibilités. Voir détails en agence.Agence Maisons de la Côte Atlantique de Saint-Paul-lès-Dax (40990)
- Téléphone :
- 05 58 35 44 71
- Adressse :
- 34 avenue de la liberté
40990 Saint-Paul-lès-Dax, France
