Maison neuve à
Saint-Perdon
(40090) Référence :
FP2477923_3
Prix du projet : Maison avec Terrain
prix 221 900 €
- 4 pièces
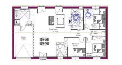
- 3 chambres
- Surface maison 90 m2
Frédéric PINTO des maisons MCA de Mont de Marsan, vous propose d'adapter le modèle Paradis Investisseurs, sur ce joli terrain de 565m2 situé sur la commune de Saint Perdon, à environ 15 minutes de Mont de Marsan.
Spécialement conçu pour les investisseurs, adaptée aux normes PMR pour le locatif, cette maison dispose d'un hall d'entrée avec placard, un beau salon / séjour tourné vers le jardin, et une cuisine ouverte, soit un espace de vie de plus de 40m2. Le coin nuit est composé de 3 chambres avec placards, une salle d'eau et un WC séparé.
Cette maison coquette vous plaira grâce à sa simplicité et son agencement bien pensé.
N'attendez plus, contactez vite Frédéric PINTO à l'agence commerciale MCA de Mont de Marsan, afin qu'il vous guide dans les démarches et vous accompagne dans votre projet de construction personnalisé.
*Terrain et frais de notaire inclus
Mentions légales
Idée de réalisation en modèle prêt à décorer sur l'un de nos terrains partenaires, sous réserve de disponibilités. Voir détails en agence.Agence Maisons de la Côte Atlantique de Mont-de-Marsan (40000)
- Téléphone :
- 05 35 37 90 02
- Adressse :
- 2 rue de la ferme de Beillet
40000 Mont-de-Marsan, France
