Maison neuve à
Mesnil-Roc'h (35720) Référence : CR2452867_4

Prix du projet : Maison avec Terrain

prix 253 240 €

  • 4 pièces
  • 3 chambres
  • Surface maison 85 m2

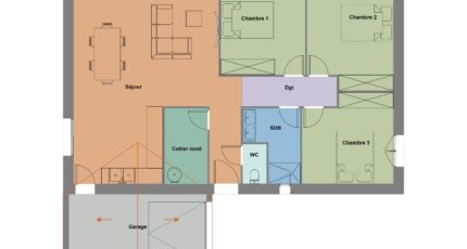
VENTE : maison T4 (85 m²) à Saint-Pierre-de-Plesguen
PROCHE DE SAINT-MALO - MAISON 4 PIÈCES NEUVE
En vente : localisée à 10 km de la Manche et à 22 km de Saint-Malo, nous sommes ravis de vous proposer cette maison de 4 pièces de plain-pied de 85 m² à Saint-Pierre-de-Plesguen (35720). Son intérieur comporte trois chambres, une cuisine et une salle de bains.
Le terrain de la propriété s'étend sur 502 m².

Son prix de vente est de 253 240 €.
Prenez contact avec Cyril RENVAZE pour toute question sur la maison ou sur les démarches à suivre. Maisons de l'Avenir Pacé vous accompagne dans tous vos projets immobiliers et dans toutes vos démarches.

Mentions légales

Terrain proposé par un partenaire foncier selon disponibilités et autorisation de publicité au prix de 66 240 €. Hors droit d'enregistrement et frais de notaire. Terrain + Maison proposés au prix de 253 240 € (Hors branchements et raccordements, papiers peints, peintures, revêtement de sol dans les chambres. Tarif modifiable sans préavis). Etiquette énergie : A. Différents modèles disponibles pour ce terrain. Assurances et garanties du constructeur (RC professionnelle, décennale, dommage ouvrage, garantie de remboursement de l'acompte, livraison à prix et délai convenu) : https://www.maisonsdelavenir.com/mentions-legales/.

Contactez l'agence de Pacé

02 99 83 07 20

    * Champs obligatoires

    Vos informations sont traitées par HEXAOM et transmises à un conseiller commercial qui vous contactera afin de répondre à votre demande. Les plans et images présentés sur notre site sont la propriété d’HEXAOM et ne peuvent pas être reproduits sans son accord. Pour retrouver notre politique de protection des données personnelles et exercer vos droits conformément à la « loi informatique et liberté » cliquez-ici.