Maison neuve à
Saint-Pierre-d'Eyraud (24130) Référence : BD2420159_4

Prix du projet : Maison avec Terrain

prix 285 000 €

  • 5 pièces
  • 4 chambres
  • Surface maison 130 m2

Votre future maison neuve MCA de 130m2 à St Pierre d'Eyraud à partir de 285 000 Euros.
Implantée sur ce beau terrain plat de 1200m2, bien exposé, elle offre un cadre de vie agréable à seulement quelques minutes des commodités.
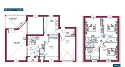
Cette maison se compose d'un bel espace salon séjour convivial et lumineux de 40 m2 ,
-d'une cuisine fermée donnant sur un cellier et garage en enfilade pour plus de praticité
Un espace nuit optimisé pour toute la famille avec:
-1 chambre au RC avec son espace salle d'eau dédié.
-3 chambres à l'étage entre 11 et 13m2 chacune avec emplacements pour placards intégrés
- salle de bain et wc séparé à l'étage
Ce modèle a été pensé pour offrir un espace de vie agréable et bien agencé, parfait pour une famille. Son architecture contemporaine et ses volumes optimisés en font un habitat confortable, pratique et économe en énergie.
100% personnalisable, elle s'adapte à vos envies: aménagement des espaces, finitions, équipements.
Prix maison + terrain: à partir de 285 000 euros *
*Hors frais de notaire, hors viabilisation, hors terrassement, assainissement, adaptation à prévoir en fonction d'une visite technique sur le terrain, hors peintures intérieures et cuisine.
Pour plus d'informations et une étude personnalisée de votre projet contactez notre agent local Benoît DURAND au O6 65 85 53 20.
Nous vous accompagnons à chaque étape de votre projet!!

Mentions légales

Idée de réalisation en modèle prêt à décorer sur l'un de nos terrains partenaires, sous réserve de disponibilités. Voir détails en agence.

Contactez l'agence de Bergerac

05 53 22 30 10

    * Champs obligatoires

    Vos informations sont traitées par HEXAOM et transmises à un conseiller commercial qui vous contactera afin de répondre à votre demande. Les plans et images présentés sur notre site sont la propriété d’HEXAOM et ne peuvent pas être reproduits sans son accord. Pour retrouver notre politique de protection des données personnelles et exercer vos droits conformément à la « loi informatique et liberté » cliquez-ici.