Maison neuve à
Saint-Quay-Portrieux (22410) Référence : VC2004362_2

Prix du projet : Maison avec Terrain

prix 290 000 €

  • 5 pièces
  • 4 chambres
  • Surface maison 90 m2

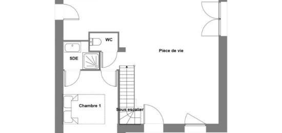
Maison T5 (87 m²) à vendre à Saint-Quay-Portrieux
IDÉALEMENT SITUÉE - MAISON 5 PIÈCES NEUVE
En vente : située à 4 km de la Manche et à deux pas de Saint-Brieuc, Maisons de l'Avenir Saint-Brieuc vous présente cette maison de 5 pièces de 87 m² idéalement située dans Saint-Quay-Portrieux (22410). Elle est composée de quatre chambres, d'une cuisine et d'une salle de bains.
Le terrain de cette maison est de 424 m².
C'est une maison de 2 niveaux. Elle est neuve.
La maison est située dans un secteur prisé. Il y a cinq établissements scolaires à moins de 10 minutes à pied. La nationale N12 est accessible à 12 km. On trouve un tennis, des commerces, trois boulangeries, trois supermarchés, deux épiceries et deux boucheries-charcuteries à proximité. Ne manquez pas le marché Quai Richet chaque lundi matin.
Son prix de vente est de 290 000 €.
Contactez notre agence (Vincent COEUR : 02-96-78-52-58) pour tout renseignement sur le bien, sur les modalités de vente et sur les démarches à suivre. Maisons de l'Avenir Saint-Brieuc est là pour vous accompagner dans tous vos projets immobiliers.

Mentions légales

Maisons de l’Avenir, constructeur de maisons individuelles, propose en collaboration avec ses partenaires fonciers, une sélection de terrains constructibles, selon disponibilité, pour la construction de maisons neuves définies par le constructeur, avec un contrat de construction de maison individuelle, dans le cadre de la loi du 19/12/1990. Prix net, hors frais notariés, d'enregistrement et de publicité foncière

Terrain proposé au prix de : 96 900 €

Maison proposée au prix de : 193 100 €

Etiquette énergie : A. Assurances et garanties du constructeur (RC professionnelle, décennale, dommage ouvrage, Garantie de livraison à prix et délai convenu). https://www.maisonsdelavenir.com/mentions-legales/

Contactez l'agence de Saint-Brieuc

02 96 78 52 58

    * Champs obligatoires

    Vos informations sont traitées par HEXAOM et transmises à un conseiller commercial qui vous contactera afin de répondre à votre demande. Les plans et images présentés sur notre site sont la propriété d’HEXAOM et ne peuvent pas être reproduits sans son accord. Pour retrouver notre politique de protection des données personnelles et exercer vos droits conformément à la « loi informatique et liberté » cliquez-ici.