Maison neuve à
Saint-Savin
(33920) Référence :
IN2437699_5
Prix du projet : Maison avec Terrain
prix 196 000 €
- 3 pièces
- 2 chambres
- Surface maison 69 m2
EXCLUSIVITÉ MCA BLAYE - Contact : Isabelle NADAU - 07#83#16#38#49
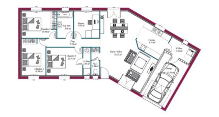
VENTE - Maison T3 de 107 m² à Saint-Savin (33920)
Maisons de la Côte Atlantique Blaye vous propose cette maison neuve de plain-pied de 107 m², implantée sur un terrain de 2 390 m² à Saint-Savin (33920). Ce modèle de 3 pièces offre un agencement spacieux et confortable, comprenant deux chambres, une cuisine et une salle de bains. La maison est entièrement neuve et peut être personnalisée selon vos besoins et votre mode de vie.
Le secteur bénéficie de la présence d'écoles maternelles et élémentaires à proximité. Les gares de Saint-Mariens-Saint-Yzan et de Cavignac se trouvent à moins de 10 minutes en voiture, facilitant vos déplacements. Vous profiterez également de nombreuses commodités à quelques minutes seulement, notamment un court de tennis, trois commerces, deux boulangeries, un supermarché et un bureau de poste.
Le prix proposé est de 196 000 € pour l'ensemble terrain + maison, auxquels s'ajoutent les frais annexes tels que les frais de notaire, les raccordements, l'assainissement, l'aménagement extérieur et les éventuelles options supplémentaires.
Mentions légales
Idée de réalisation en modèle prêt à décorer sur l'un de nos terrains partenaires, sous réserve de disponibilités. Voir détails en agence.Agence Maisons de la Côte Atlantique de Blaye (33390)
- Téléphone :
- 05 57 32 87 63
- Adressse :
- 64, Rue Saint Romain
33390 Blaye, France
