Maison neuve à
Saint-Savin (33920) Référence : ccsaintsavinexclu-2_5

Prix du projet : Maison avec Terrain

prix 179 000 €

  • 4 pièces
  • 2 chambres
  • Surface maison 65 m2

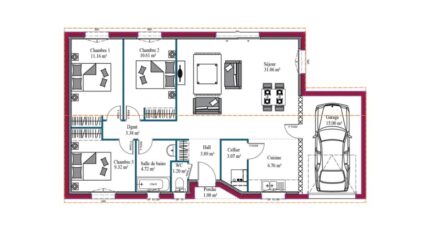
VENTE : maison T4 (65 m²) à Saint-Savin
EMPLACEMENT PRIVILÉGIÉ - MAISON 4 PIÈCES NEUVE
À 17 km de la côte atlantique, nous vous proposons cette maison de 4 pièces de plain-pied de 65 m² bénéficiant d'un emplacement privilégié dans Saint-Savin (33920).
Conçue de plain-pied, elle offre deux chambres, une cuisine et une salle de bains. La maison est neuve.
Le terrain du bien est de 902 m².
La maison se trouve dans un secteur convoité. Des établissements scolaires maternelles et élémentaires y sont implantés. Niveau transports en commun, il y a deux gares (Saint-Mariens-Saint-Yzan et Cavignac) à moins de 10 minutes en voiture. La nationale N10 est accessible à 7 km. On trouve un tennis, trois commerces et un bureau de poste à proximité de la maison.
Son prix de vente est de 179 000 €.
Contactez Carol CHEVALIER (tél : O6-63-22-28-94) pour toute information sur le bien ou sur les démarches à suivre. Maisons de la Côte Atlantique Bordeaux est là pour vous accompagner dans tous vos projets immobiliers.

Mentions légales

Idée de réalisation en modèle prêt à décorer sur l'un de nos terrains partenaires, sous réserve de disponibilités. Voir détails en agence.

Contactez l'agence de Bordeaux

05 57 19 56 19

    * Champs obligatoires

    Vos informations sont traitées par HEXAOM et transmises à un conseiller commercial qui vous contactera afin de répondre à votre demande. Les plans et images présentés sur notre site sont la propriété d’HEXAOM et ne peuvent pas être reproduits sans son accord. Pour retrouver notre politique de protection des données personnelles et exercer vos droits conformément à la « loi informatique et liberté » cliquez-ici.