Maison neuve à
Saint-Savin
(33920) Référence :
IN2482561-0_2
Prix du projet : Maison avec Terrain
prix 305 000 €
- 7 pièces
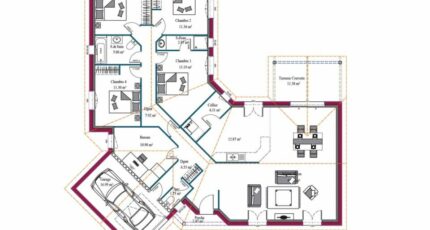
- 4 chambres
- Surface maison 146 m2
maison à vendre Gironde / maison familiale / projet immobilier 33920
Maison 7 pièces - 146 m² à Saint-Savin
MCA Blaye - Avis note 4.8
Située à Saint-Savin, cette maison T7 de plain‑pied offre 146 m² habitables et un terrain de 1 980 m², idéal pour un projet immobilier en Gironde. Elle comprend quatre chambres, une cuisine, deux salles de bains et un agencement pensé pour une famille. À proximité : écoles, gares de Saint-Mariens-Saint-Yzan et Cavignac, commerces, tennis et accès rapide à la N10.
Prix maison + terrain : 305 000 €
Mentions légales
Idée de réalisation en modèle prêt à décorer sur l'un de nos terrains partenaires, sous réserve de disponibilités. Voir détails en agence.Agence Maisons de la Côte Atlantique de Blaye (33390)
- Téléphone :
- 05 57 32 87 63
- Adressse :
- 64, Rue Saint Romain
33390 Blaye, France
