Maison neuve à
Saint-Savin
(33920) Référence :
IN2482565_2
Prix du projet : Maison avec Terrain
prix 305 000 €
- 7 pièces
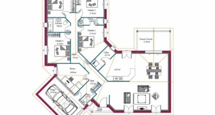
- 4 chambres
- Surface maison 146 m2
maison plain‑pied neuve / terrain 1980 m² / proximité gares
Saint-Savin - Maison neuve 7 pièces de 146 m²
MCA Blaye - Avis note 4.8
À Saint-Savin, découvrez cette maison neuve de plain‑pied offrant 146 m², quatre chambres, une cuisine et deux salles de bains, implantée sur un terrain de 1 980 m². Le secteur propose écoles primaires, gares à moins de 10 minutes, commerces, tennis et un accès rapide à la N10. Un emplacement idéal pour une maison familiale en Gironde.
Prix maison + terrain : 305 000 €
Mentions légales
Idée de réalisation en modèle prêt à décorer sur l'un de nos terrains partenaires, sous réserve de disponibilités. Voir détails en agence.Agence Maisons de la Côte Atlantique de Blaye (33390)
- Téléphone :
- 05 57 32 87 63
- Adressse :
- 64, Rue Saint Romain
33390 Blaye, France
