Maison neuve à
Saint-Selve (33650) Référence : DC2488015_1

Prix du projet : Maison avec Terrain

prix 351 300 €

  • 4 pièces
  • 3 chambres
  • Surface maison 100 m2

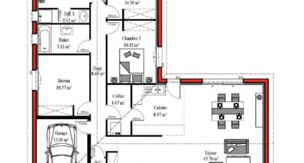
Maison de 4 pièces (100 m²) à vendre à Saint-Selve
IDÉALEMENT SITUÉE - MAISON 4 PIÈCES NEUVE
En vente à 56 km de la côte atlantique et à 26 km de Bordeaux, Batisoft Bordeaux vous propose cette maison de 4 pièces de plain-pied de 100 m² idéalement située dans Saint-Selve (33650). Son intérieur se divise en trois chambres, une cuisine et une salle de bains.
Le terrain de la propriété s'étend sur 1 300 m².
Cette maison est neuve.
La maison est située dans un quartier convoité. On trouve l'École Primaire Privée Claire de Castelbajac, l'École Primaire les Platanes et le Collège de Saint-Selve à moins de 10 minutes à pied. Niveau transports, il y a cinq gares à moins de 10 minutes en voiture. Il y a un accès à l'autoroute A62 à 3 km. On trouve un tennis et deux commerces à quelques minutes à peine.
Elle est à vendre pour la somme de 351 300 €.
Prenez contact avec notre agence (CAZAUBON David : O6-11-78-42-56) pour toute question sur la propriété, sur les modalités de vente ou sur les démarches à suivre. Donnez vie à vos projets immobiliers avec Batisoft Bordeaux.

Mentions légales

Idée de réalisation en modèle prêt à décorer sur l’un de nos terrains partenaires, sous réserve de disponibilités. Voir détails en agence.

Contactez l'agence de Bordeaux

05 35 37 13 70

    * Champs obligatoires

    Vos informations sont traitées par HEXAOM et transmises à un conseiller commercial qui vous contactera afin de répondre à votre demande. Les plans et images présentés sur notre site sont la propriété d’HEXAOM et ne peuvent pas être reproduits sans son accord. Pour retrouver notre politique de protection des données personnelles et exercer vos droits conformément à la « loi informatique et liberté » cliquez-ici.