Maison neuve à
Saint-Sever
(40500) Référence :
PPD2480639_3
Prix du projet : Maison avec Terrain
prix 366 700 €
- 7 pièces
- 4 chambres
- Surface maison 146 m2
Pauline Peyras Darracq des Maisons MCA à Hagetmau, vous propose d'adapter le modèle Plaisir Sud, sur un terrain de 2480m2 sur la commune de Saint Sever.
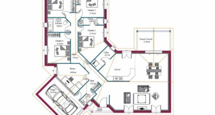
Notre modèle Plaisir Sud d'une superficie de 146 m2 est la maison familiale par excellence !
Elle dispose d'une une cuisine semi ouverte avec cellier attenant, donnant sur une magnifique pièce de vie traversante, baignée de lumière grâce à ses nombreuses ouvertures, donnant sur une belle terrasse couverte, pour offrir un espace jour de plus de 60m2.
Le coté nuit est composé de 3 grandes chambres avec placards, une suite parentale avec sa propre salle d'eau, un bureau de plus de 11m2, et une salle de bains avec wc.
Un garage de près de 17m2, vient compléter ce bel ensemble.
Le prix affiché comprend le terrain, les frais de notaire, les frais annexes (raccordements, bornage, etc....) et cette maison livrée prête à décorer, aux normes RE2020.
Il restera à votre charge le revêtement de sol des chambres, la peinture intérieure ainsi que la cuisine équipée.
Contactez vite Pauline Peyras-Darracq à l'agence d'Hagetmau afin qu'elle vous guide dans les démarches et vous accompagne dans ce projet de construction personnalisé.
Mentions légales
Idée de réalisation en modèle prêt à décorer sur l'un de nos terrains partenaires, sous réserve de disponibilités. Voir détails en agence.Agence Maisons de la Côte Atlantique de Hagetmau (40700)
- Téléphone :
- 05 35 37 16 88
- Adressse :
- 36 rue Victor Hugo
40700 Hagetmau, France
