Maison neuve à
Saint-Soupplets (77165) Référence : CY2469255_1

Prix du projet : Maison avec Terrain

prix 323 000 €

  • 5 pièces
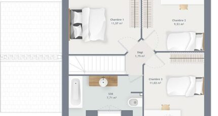
  • 3 chambres
  • Surface maison 80 m2

VENTE : maison T5 (80 m²) à Saint-Soupplets
IDÉALEMENT SITUÉE - MAISON 5 PIÈCES NEUVE
Proche de la gare de Dammartin-Juilly-Saint-Mard (Paris à 30 min avec le Transilien K), nous sommes ravis de vous proposer en vente, idéalement située dans Saint-Soupplets (77165), cette maison de 5 pièces de 80 m². Son intérieur comporte trois chambres, une cuisine et une salle de bains.
Le terrain de la propriété s'étend sur 425 m².
Cette maison compte 2 niveaux. Elle est neuve.
La maison est située dans un secteur convoité. L'École Élémentaire Henri Caroly, l'École Maternelle Saint Soupplets et le Collège Nicolas Tronchon se trouvent à moins de 10 minutes à pied. Côté transports en commun, il y a les gares Dammartin-Juilly-Saint-Mard, Le Plessis-Belleville et Thieux-Nantouillet à moins de 10 minutes en voiture. Il y a une bibliothèque, trois commerces, un bureau de poste, une épicerie et deux boucheries-charcuteries à proximité.
Elle est à vendre pour la somme de 323 000 €.
Contactez notre agence (Cedric YAHIAOUI : 06-66-57-00-63) pour tout renseignement sur le bien ou sur les modalités de vente. Maisons France Confort Mareuil-lès-Meaux est là pour vous accompagner dans tous vos projets immobiliers.

Annonce proposée par un Agent Commercial Partenaire.

Mentions légales

Terrain proposé par un partenaire foncier selon disponibilités et autorisation de publicité au prix de 133 000 €. Hors droit d'enregistrement et frais de notaire. Terrain + Maison proposés au prix de 323 000 € (Hors branchements et raccordements, papiers peints, peintures, revêtement de sol dans les chambres. Tarif modifiable sans préavis). Etiquette énergie : A. Différents modèles disponibles pour ce terrain. Assurances et garanties du constructeur (RC professionnelle, décennale, dommage ouvrage, garantie de remboursement de l'acompte, livraison à prix et délai convenu) : https://www.maisons-france-confort.fr/mentions-legales/. HEXAOM Services est enregistré auprès de l'ORIAS en tant que Courtier en financement, Niveau 1, sous le numéro 14001345.

Contactez l'agence de Mareuil-lès-Meaux

01 60 09 28 30

    * Champs obligatoires

    Vos informations sont traitées par HEXAOM et transmises à un conseiller commercial qui vous contactera afin de répondre à votre demande. Les plans et images présentés sur notre site sont la propriété d’HEXAOM et ne peuvent pas être reproduits sans son accord. Pour retrouver notre politique de protection des données personnelles et exercer vos droits conformément à la « loi informatique et liberté » cliquez-ici.