Maison neuve à
Saint-Soupplets (77165) Référence : JR2492185_2

Prix du projet : Maison avec Terrain

prix 289 000 €

  • 6 pièces
  • 4 chambres
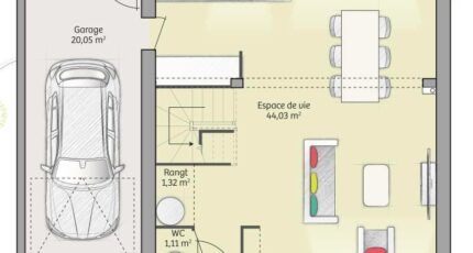
  • Surface maison 91 m2

Découvrez ce projet de construction à Saint-Soupplets (77165)
Maison spacieuse, idéale pour accueillir toute la famille.
Proposé par JOACHIM REICH et idéal pour concrétiser votre rêve de maison neuve sur un terrain proche de toutes les commodités.
Cette maison a votre image offre des prestations modernes, une conception économe en énergie conforme à la norme RE 2020. « CETTE MAISON RE 2020 CONSOMME 70% DE MOINS Q'UNE MAISON DE 10 ANS »
Contactez-moi pour accéder aux informations dont vous avez besoin, mon implication ainsi que mon accompagnement dans votre projet jusqu'à la remise de vos clés, est aujourd'hui reconnu par plus de 300 clients en Picardie, qui m'ont confié le rêve d'une vie :
N'hésitez pas à me contacter du lundi au samedi au /06/27/71/60/55 Joachim REICH
Exemple pour ce projet de maison avec ses 2 belles chambres, un séjour ouvert sur la cuisine le tout accompagné d'un garage qui peut être proposé en option et de prestations premiums haut de gamme pour un budget à partir de 289000 euros

Mentions légales

Terrain proposé par un partenaire foncier selon disponibilités et autorisation de publicité au prix de 110 000 €. Hors droit d'enregistrement et frais de notaire. Terrain + Maison proposés au prix de 289 000 € (Hors branchements et raccordements, papiers peints, peintures, revêtement de sol dans les chambres. Tarif modifiable sans préavis). Etiquette énergie : A. Différents modèles disponibles pour ce terrain. Assurances et garanties du constructeur (RC professionnelle, décennale, dommage ouvrage, garantie de remboursement de l'acompte, livraison à prix et délai convenu) : https://www.maisons-france-confort.fr/mentions-legales/. HEXAOM Services est enregistré auprès de l'ORIAS en tant que Courtier en financement, Niveau 1, sous le numéro 14001345.

Contactez l'agence de Compiègne

03 44 86 81 34

    * Champs obligatoires

    Vos informations sont traitées par HEXAOM et transmises à un conseiller commercial qui vous contactera afin de répondre à votre demande. Les plans et images présentés sur notre site sont la propriété d’HEXAOM et ne peuvent pas être reproduits sans son accord. Pour retrouver notre politique de protection des données personnelles et exercer vos droits conformément à la « loi informatique et liberté » cliquez-ici.