Maison neuve à
Saint-Sulpice
(81370) Référence :
DB2435378_4
Prix du projet : Maison avec Terrain
prix 210 000 €
- 4 pièces
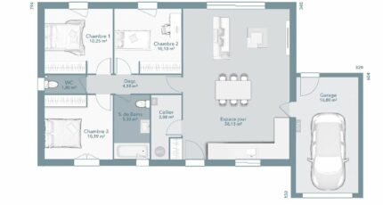
- 3 chambres
- Surface maison 83 m2
"Votre agence Maisons France Confort d'Aucamville vous propose ce beau projet maison + terrain à proximité de la commune de SAINT-SULPICE.
Vous souhaitez faire construire une maison de plain-pied ? Optez pour le modèle Actua 83 en RE2020! Dans ses 83 m² habitables, on retrouve 3 belles chambres de plus de 10 m², une salle de bains, un cellier et un vaste espace jour de près de 40 m² pour accueillir votre cuisine, votre salon et votre salle à manger ! Autre atout de ce modèle Maisons France Confort Sud, l'avancée du garage en option de près de 17 m² apporte une dynamique à la façade.
prix: 210000€hf
Pour toutes informations, contactez l'agence MAISONS FRANCE CONFORT d'Aucamville au 05.34.43.84.38"
Annonce proposée par un Agent Commercial Partenaire.
Mentions légales
Terrain proposé par un partenaire foncier selon disponibilités et autorisation de publicité au prix de 70 000 €. Hors droit d'enregistrement et frais de notaire. Terrain + Maison proposés au prix de 210 000 € (Hors branchements et raccordements, papiers peints, peintures, revêtement de sol dans les chambres. Tarif modifiable sans préavis). Etiquette énergie : A. Différents modèles disponibles pour ce terrain. Assurances et garanties du constructeur (RC professionnelle, décennale, dommage ouvrage, garantie de remboursement de l'acompte, livraison à prix et délai convenu) : https://www.maisons-france-confort.fr/mentions-legales/. HEXAOM Services est enregistré auprès de l'ORIAS en tant que Courtier en financement, Niveau 1, sous le numéro 14001345.Agence Maisons France Confort de Aucamville (31140)
- Téléphone :
- 05 34 43 84 38
- Adressse :
- 17 chemin Bellegarrigues
31140 Aucamville, France
