Maison neuve à
Saint-Sulpice (81370) Référence : DB2440454_11

Prix du projet : Maison avec Terrain

prix 260 000 €

  • 5 pièces
  • 4 chambres
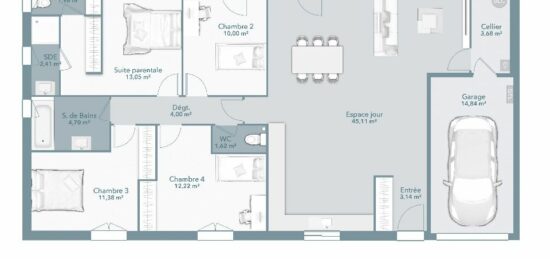
  • Surface maison 110 m2

"Votre agence Maisons France Confort d'Aucamville vous propose ce beau projet maison + terrain proche de la commune de SAINT SULPICE.
De plain-pied, ce plan de maison de 110 m² est construit en L pour garantir des espaces jour et nuit parfaitement distincts. L'entrée s'ouvre sur une pièce de vie de 43 m² composée d'un salon, de la cuisine et de la salle à manger. Cet espace bénéficie de beaucoup de lumière naturelle avec 2 baies disposées en face à face. Pour la configuration de la partie nuit, c'est un couloir qui dessert 3 chambres d'un côté et de l'autre, une salle de bains et une suite parentale en option, avec dressing et salle d'eau. Cette maison dispose également d'un garage intégré de 15 m², totalement accessible de la maison. Vous avez le coup de coeur pour cette maison fonctionnelle, lumineuse et organisée, contactez nous !
prix: 260000€ hf
Pour toutes informations, contactez l'agence MAISONS FRANCE CONFORT d'Aucamville au 05.34.43.84.38"

Annonce proposée par un Agent Commercial Partenaire.

Mentions légales

Terrain proposé par un partenaire foncier selon disponibilités et autorisation de publicité au prix de 77 000 €. Hors droit d'enregistrement et frais de notaire. Terrain + Maison proposés au prix de 260 000 € (Hors branchements et raccordements, papiers peints, peintures, revêtement de sol dans les chambres. Tarif modifiable sans préavis). Etiquette énergie : A. Différents modèles disponibles pour ce terrain. Assurances et garanties du constructeur (RC professionnelle, décennale, dommage ouvrage, garantie de remboursement de l'acompte, livraison à prix et délai convenu) : https://www.maisons-france-confort.fr/mentions-legales/. HEXAOM Services est enregistré auprès de l'ORIAS en tant que Courtier en financement, Niveau 1, sous le numéro 14001345.

Contactez l'agence de Aucamville

05 34 43 84 38

    * Champs obligatoires

    Vos informations sont traitées par HEXAOM et transmises à un conseiller commercial qui vous contactera afin de répondre à votre demande. Les plans et images présentés sur notre site sont la propriété d’HEXAOM et ne peuvent pas être reproduits sans son accord. Pour retrouver notre politique de protection des données personnelles et exercer vos droits conformément à la « loi informatique et liberté » cliquez-ici.