Maison neuve à
Saint-Sulpice-et-Cameyrac
(33450) Référence :
CV2468187_1
Prix du projet : Maison avec Terrain
prix 799 000 €
- 4 pièces
- 3 chambres
- Surface maison 180 m2
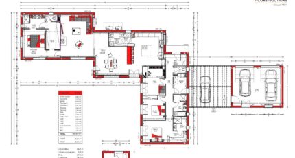
SAINT SULPICE ET CAMEYRAC, MAISON CONTEMPORAINE DE 180 m²
Alpha Constructions vous propose de réaliser cette magnifique villa, toute en toit plat, de 180 m² habitables avec un double garage non attenant de 40 m². Elle se compose d'une vaste pièce de vie centrale de 75 m² offrant confort et convivialité pour toute la famille, avec cuisine et arrière-cuisine. D'un côté de la maison, vous trouverez 3 chambres dont 1 suite, une buanderie, une salle de bain et un WC. Une autre grande suite parentale se trouve à l'autre extrémité de la maison. Terrain de 3100 m², idéalement situé proche de la gare. Contactez votre conseiller, Mr VINCENT, au O6.71.17.33.22 pour plus de renseignements.
(Inclus terrain, frais de notaire, viabilisation, maison prête à décorer)
Mentions légales
Terrain proposé par un partenaire foncier selon disponibilité dans le cadre d’un projet de construction avec Alpha Constructions. Les descriptions, photographies, surfaces et prix illustrant l’annonce sont fournies à titre indicatif et ne sont pas contractuels. Non soumis au DPE. Différents modèles disponibles.Agence Alpha Constructions de Beychac-et-Caillau (33750)
- Téléphone :
- 05 56 06 31 92
- Adressse :
- 15 route de canteloup
33750 Beychac-et-Caillau, France