Maison neuve à
Saint-Symphorien (33113) Référence : ML2481537_4

Prix du projet : Maison avec Terrain

prix 222 600 €

  • 5 pièces
  • 3 chambres
  • Surface maison 90 m2

Saint-Symphorien : maison T5 (90 m²) en vente
MAISON 5 PIÈCES NEUVE
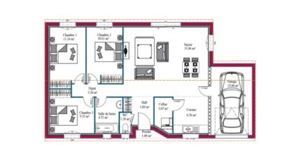
Maisons de la Côte Atlantique Langon vous présente cette maison de 5 pièces de plain-pied de 90 m² en vente à Saint-Symphorien (33113).
Elle inclut trois chambres, une cuisine et une salle de bains. Cette maison est neuve.
Le terrain du bien est de 480 m².
Il y a deux établissements scolaires à moins de 10 minutes à pied et, comme le Collège François Mauriac. L'autoroute A65 est accessible à 20 km. On trouve un tennis, un commerce, un bureau de poste et une boucherie-charcuterie dans les environs.
Son prix de vente est de 222 600 €.
Prenez contact avec Maryne LAGORCE (tél : O6-81-35-86-92) pour toute information sur cette maison ou sur les modalités de vente. Maisons de la Côte Atlantique Langon est là pour vous accompagner à toutes les étapes de votre projet.

Mentions légales

Idée de réalisation en modèle prêt à décorer sur l'un de nos terrains partenaires, sous réserve de disponibilités. Voir détails en agence.

Contactez l'agence de Langon

05 56 76 82 20

    * Champs obligatoires

    Vos informations sont traitées par HEXAOM et transmises à un conseiller commercial qui vous contactera afin de répondre à votre demande. Les plans et images présentés sur notre site sont la propriété d’HEXAOM et ne peuvent pas être reproduits sans son accord. Pour retrouver notre politique de protection des données personnelles et exercer vos droits conformément à la « loi informatique et liberté » cliquez-ici.