Maison neuve à
Saint-Symphorien
(33113) Référence :
ML2481537_6
Prix du projet : Maison avec Terrain
prix 243 600 €
- 6 pièces
- 3 chambres
- Surface maison 100 m2
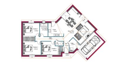
Maison F6 (100 m²) en vente à Saint-Symphorien
MAISON 6 PIÈCES NEUVE
À vendre : nous sommes heureux de vous présenter cette maison de 6 pièces de plain-pied de 100 m² et de 480 m² de terrain à Saint-Symphorien (33113). Conçue de plain-pied, elle est composée de trois chambres, d'une cuisine et d'une salle de bains.
Cette maison est neuve.
On trouve deux établissements scolaires à moins de 10 minutes à pied et, comme le Collège François Mauriac. Il y a un accès à l'autoroute A65 à 20 km. Il y a un tennis, un commerce, un bureau de poste et une boucherie-charcuterie à proximité.
Elle est à vendre pour la somme de 243 600 €.
Contactez Maryne LAGORCE (tél : O6-81-35-86-92) pour toute question sur la maison, sur les démarches à suivre ou sur les modalités de vente. Maisons de la Côte Atlantique Langon est là pour vous accompagner à toutes les étapes de l'achat.
Mentions légales
Idée de réalisation en modèle prêt à décorer sur l'un de nos terrains partenaires, sous réserve de disponibilités. Voir détails en agence.Agence Maisons de la Côte Atlantique de Langon (33210)
- Téléphone :
- 05 56 76 82 20
- Adressse :
- 2, Rue du Onze Novembre
33210 Langon, France
