Maison neuve à
Saint-Thibault-des-Vignes (77400) Référence : FS2455865_1

Prix du projet : Maison avec Terrain

prix 371 000 €

  • 5 pièces
  • 3 chambres
  • Surface maison 90 m2

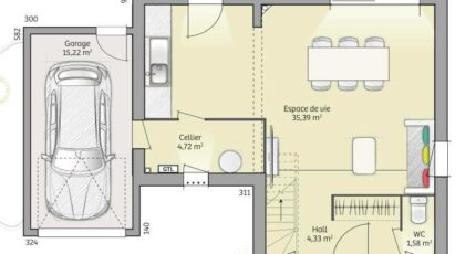
Maison F5 (90 m²) à vendre à Saint-Thibault-des-Vignes
IDÉALEMENT SITUÉE - MAISON 5 PIÈCES NEUVE
En vente : à proximité de la gare de Lagny-Thorigny (Paris à 25 min avec le Transilien P), idéalement située dans Saint-Thibault-des-Vignes (77400), notre agence Maisons France Confort Magny-le-Hongre est ravie de vous présenter cette maison de 5 pièces de 90 m².
C'est une maison de 2 niveaux. Elle inclut trois chambres, une cuisine et une salle de bains. La maison est neuve.
Le terrain de la propriété s'étend sur 288 m².
Cette propriété se situe dans un secteur recherché. L'École Maternelle Edouard Thomas et l'École Élémentaire Edouard Thomas se trouvent à moins de 10 minutes à pied. Niveau transports, il y a le RER A et E ainsi que neuf gares à moins de 10 minutes en voiture. Il y a deux tennis, de nombreux commerces, une épicerie et deux boucheries-charcuteries à quelques minutes à peine.
Elle est proposée à l'achat pour 371 000 €.
Contactez Félix SOUMARMON (tél : 06-10-24-97-84) pour toute information sur la maison, sur les démarches à suivre ou sur les modalités de vente.

Annonce proposée par un Agent Commercial Partenaire.

Mentions légales

Terrain proposé par un partenaire foncier selon disponibilités et autorisation de publicité au prix de 205 000 €. Hors droit d'enregistrement et frais de notaire. Terrain + Maison proposés au prix de 371 000 € (Hors branchements et raccordements, papiers peints, peintures, revêtement de sol dans les chambres. Tarif modifiable sans préavis). Etiquette énergie : A. Différents modèles disponibles pour ce terrain. Assurances et garanties du constructeur (RC professionnelle, décennale, dommage ouvrage, garantie de remboursement de l'acompte, livraison à prix et délai convenu) : https://www.maisons-france-confort.fr/mentions-legales/. HEXAOM Services est enregistré auprès de l'ORIAS en tant que Courtier en financement, Niveau 1, sous le numéro 14001345.

Contactez l'agence de Magny-le-Hongre

01 84 80 92 96

    * Champs obligatoires

    Vos informations sont traitées par HEXAOM et transmises à un conseiller commercial qui vous contactera afin de répondre à votre demande. Les plans et images présentés sur notre site sont la propriété d’HEXAOM et ne peuvent pas être reproduits sans son accord. Pour retrouver notre politique de protection des données personnelles et exercer vos droits conformément à la « loi informatique et liberté » cliquez-ici.