Maison neuve à
Saint-Vigor-le-Grand
(14400) Référence :
JS2322051_10
Prix du projet : Maison avec Terrain
prix 201 000 €
- 5 pièces
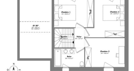
- 3 chambres
- Surface maison 85 m2
Bayeux : maison F5 (85 m²) en vente
MAISON 5 PIÈCES NEUVE - PROCHE DE CAEN
À 9 km de la Manche et à deux pas de Caen, nous sommes ravis de vous proposer cette maison de 5 pièces de 85 m² en vente à Bayeux (14400).
Il s'agit d'une maison de 2 niveaux. Son intérieur se divise en trois chambres, une cuisine et une salle de bains. La maison est neuve.
Le terrain de la propriété s'étend sur 301 m².
Des écoles du primaire et du secondaire sont implantées à moins de 10 minutes à pied, tout comme une crèche. Côté transports, on trouve la gare Bayeux dans un rayon de 1 km. La nationale N13 est accessible à 3 km. Il y a une bibliothèque, des commerces, des boulangeries, un supermarché, trois épiceries et un bureau de poste à proximité du logement. Enfin, 2 marchés animent les environs.
Son prix de vente est de 201 000 €.
Prenez contact avec notre agence (Emilie HUE : 06-29-81-46-66) pour tout renseignement sur cette maison. Maisons France Confort Bayeux est là pour vous accompagner à toutes les étapes de l'achat.
Annonce proposée par un Agent Commercial Partenaire.
Mentions légales
Terrain proposé par un partenaire foncier selon disponibilités et autorisation de publicité au prix de 56 000 €. Hors droit d'enregistrement et frais de notaire. Maison proposée, avec un contrat de construction de maison individuelle, dans le cadre de la loi du 19/12/1990, au prix de 145 000 € (Hors branchements et raccordements, papiers peints, peintures, revêtement de sol dans les chambres, qui sont chiffrés dans les travaux qui restent à charge du client. Tarif modifiable sans préavis). Étiquette énergie : A. Différents modèles disponibles pour ce terrain. Assurances et garanties du constructeur comprises (RC professionnelle, décennale, dommage ouvrage).Agence Maisons France Confort de Bayeux (14400)
- Téléphone :
- 02 31 51 20 91
- Adressse :
- 2, rue Saint Loup
14400 Bayeux, France
