Maison neuve à
Saint-Vigor-le-Grand (14400) Référence : JS2485040_2

Prix du projet : Maison avec Terrain

prix 215 700 €

  • 5 pièces
  • 3 chambres
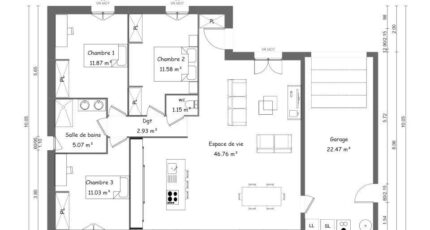
  • Surface maison 95 m2

Saint-Vigor-le-Grand : maison de 5 pièces (95 m²) à vendre
IDÉALEMENT SITUÉE - MAISON 5 PIÈCES NEUVE
En vente : localisée à deux pas de Caen, idéalement située dans Saint-Vigor-le-Grand (14400), découvrez cette maison de 5 pièces de plain-pied de 95 m². Conçue de plain-pied, elle propose trois chambres, une cuisine et deux salles de bains.
Le terrain de la propriété est de 328 m².
La maison est neuve.
Le bien se trouve dans un secteur attractif. On y trouve une école primaire ainsi qu'une structure d'accueil pour les enfants en bas âge. Côté transports en commun, il y a les gares Bayeux et Audrieu à moins de 10 minutes en voiture. La nationale N13 est accessible à 4 km. On trouve de nombreux commerces, trois boucheries-charcuteries et une supérette dans les environs. Le marché Rue Saint Jean anime les environs chaque mercredi matin.
Il est à vendre pour la somme de 215 700 €.
Prenez contact avec notre agence (HUE Emilie : 06-29-81-46-66) pour tout renseignement sur la maison, sur les démarches à suivre ou sur les modalités de vente.

Annonce proposée par un Agent Commercial Partenaire.

Mentions légales

Terrain proposé par un partenaire foncier selon disponibilités et autorisation de publicité au prix de 60 700 €. Hors droit d'enregistrement et frais de notaire. Terrain + Maison proposés au prix de 215 700 € (Hors branchements et raccordements, papiers peints, peintures, revêtement de sol dans les chambres. Tarif modifiable sans préavis). Etiquette énergie : A. Différents modèles disponibles pour ce terrain. Assurances et garanties du constructeur (RC professionnelle, décennale, dommage ouvrage, garantie de remboursement de l'acompte, livraison à prix et délai convenu) : https://www.maisons-france-confort.fr/mentions-legales/. HEXAOM Services est enregistré auprès de l'ORIAS en tant que Courtier en financement, Niveau 1, sous le numéro 14001345.

Contactez l'agence de Bayeux

02 31 51 20 91

    * Champs obligatoires

    Vos informations sont traitées par HEXAOM et transmises à un conseiller commercial qui vous contactera afin de répondre à votre demande. Les plans et images présentés sur notre site sont la propriété d’HEXAOM et ne peuvent pas être reproduits sans son accord. Pour retrouver notre politique de protection des données personnelles et exercer vos droits conformément à la « loi informatique et liberté » cliquez-ici.