Maison neuve à
Saint-Vrain
(91770) Référence :
AD2472234_1
Prix du projet : Maison avec Terrain
prix 310 200 €
- 5 pièces
- 3 chambres
- Surface maison 90 m2
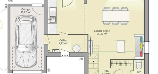
Saint-Vrain : maison F5 (90 m²) en vente
EMPLACEMENT PRIVILÉGIÉ - MAISON 5 PIÈCES NEUVE
En vente : proche de la station Bouray du RER C (30 min de Paris), bénéficiant d'un emplacement d'exception dans Saint-Vrain (91770), notre agence Maisons France Confort Nemours est heureuse de vous présenter cette maison de 5 pièces de plain-pied de 90 m² et de 414 m² de terrain. Elle offre trois chambres, une cuisine et une salle de bains.
Cette maison est neuve.
La maison se trouve dans un secteur recherché. Il y a l'École Maternelle Daniel Galland et l'École Élémentaire Daniel Galland à moins de 10 minutes à pied. Niveau transports, on trouve les lignes C et D du RER ainsi que 11 gares à moins de 10 minutes en voiture. On trouve une bibliothèque et un tennis à quelques minutes du bien.
Son prix de vente est de 310 200 €.
Contactez notre agence (DELOHEN Anne : 06-30-93-26-67) pour toute question sur la propriété ou sur les modalités de vente.
Annonce proposée par un Agent Commercial Partenaire.
Mentions légales
Terrain proposé par un partenaire foncier selon disponibilités et autorisation de publicité au prix de 140 000 €. Hors droit d'enregistrement et frais de notaire. Terrain + Maison proposés au prix de 310 200 € (Hors branchements et raccordements, papiers peints, peintures, revêtement de sol dans les chambres. Tarif modifiable sans préavis). Etiquette énergie : A. Différents modèles disponibles pour ce terrain. Assurances et garanties du constructeur (RC professionnelle, décennale, dommage ouvrage, garantie de remboursement de l'acompte, livraison à prix et délai convenu) : https://www.maisons-france-confort.fr/mentions-legales/. HEXAOM Services est enregistré auprès de l'ORIAS en tant que Courtier en financement, Niveau 1, sous le numéro 14001345.Agence Maisons France Confort de Nemours (77140)
- Téléphone :
- 01 64 28 58 32
- Adressse :
- 16 Avenue Carnot
77140 Nemours, France
